Lageweg 18

8085 AZ Doornspijk
€ 595.000,- k.k.
1kamers
156 m2wonen
824 m2perceel

Algemene informatie

Aanvaarding
In overleg
Type woning
Vrijstaande woning
Energieklasse
D

Omschrijving

Karakteristieke woonboerderij aan de rand van Doornspijk.

Aan de rustige en landelijke Lageweg in het pittoreske Doornspijk, ligt deze sfeervolle woonboerderij met authentieke uitstraling. Gebouwd in 1938 van steen en voorzien van een karakteristieke rieten kap, vormt deze woning een prachtig geheel. Een unieke kans voor liefhebbers van rust, ruimte en historie.

De woonboerderij verkeert in goede staat van onderhoud en ademt een warme, landelijke sfeer. Met zijn ruime opzet, authentieke details en de rustige ligging is het een ideaal thuis voor wie op zoek is naar karakter, comfort en natuur dichtbij.

De woning beschikt over een vrijstaande houten garage en een verzorgde tuin met meerdere terrassen op een perceel van 824 m².

Begane grond:
Via de zij ingang komt in de sfeervolle woonkeuken binnen. Deze keuken is uitgevoerd in een werkgedeelte met een authentieke AGA-fornuis, en groot werkeiland. Onder het keukenraam treft u nog een recht keukenblok waarvan u de eigen tuin in kijkt, ook is er een mooie gelegenheid om uw royale eettafel kwijt te kunnen. Aansluitend een inpandige berging (voorheen in gebruik als slaapkamer), technische ruimte en toilet. De sfeervolle woonkamer bevindt zich aan de voorzijde van de woning en is deze opgedeeld middels en-suite deuren. Deze ruimte heeft vaste kastenruimte en geeft toegang tot de kelder. Achter de woonkamer is een multifunctionele ruimte welke voor meerdere doeleinden gebruikt kan worden, zo zou hier ook prima de ouderslaapkamer kunnen komen, deze ruimte heeft twee openslaande deuren naar de tuin toe. De badkamer is te bereiken vanuit de keuken en beschikt over een douchegelegenheid, dubbele wastafel, toilet en de aansluiting voor de wasmachine en droger.

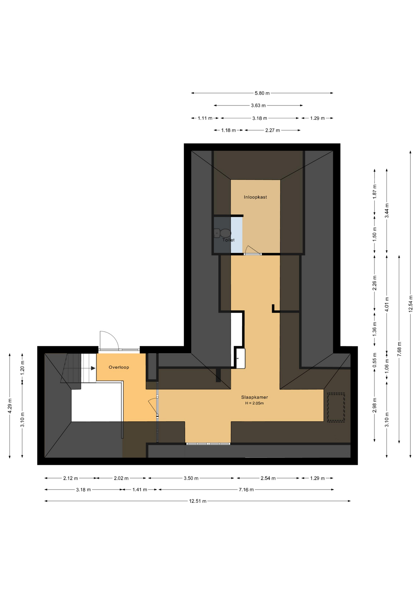
Verdieping:
De overloop met vide biedt toegang tot de royale slaapkamer met wastafelmeubel. Via een trapje/verhoging is de toiletruimte en een inloopkast te bereiken.

Bijzonderheden:
• Vrij gelegen aan rustige weg, met vrij uitzicht en volop privacy
• Authentieke bouw met rieten kap en stenen muren
• Goede staat van onderhoud
• Karaktervolle sfeer met diverse originele elementen

Een idyllische plek waar het buitenleven nog echt voelbaar is, maar met alle dagelijkse voorzieningen van Doornspijk en omgeving binnen handbereik. Deze woonboerderij is meer dan een huis – het is een thuis met een verhaal.

Geïnteresseerd? Neem vandaag nog contact op voor een bezichtiging en ervaar zelf de charme van dit unieke object.

Lees de volledige omschrijving

Contact en info

Heb je vragen over deze woning of wil je een bezichtiging inplannen? Neem dan gerust contact met ons op, we helpen je graag verder!

Plan een bezichtiging

Kenmerken

Overdracht
Koopprijs
€ 595.000,-
Aanvaarding
In overleg
Woonoppervlakte
156 m2
Inhoud
573 m3
Bouwvorm
Soort object
Woonhuis
Type woning
Vrijstaande woning
Soort
Woonboerderij
Bouwjaar
1962
Bouwvorm
Bestaande bouw
Ligging
Aan rustige weg, Vrij uitzicht
Overdracht
Woonoppervlakte
156 m2
Perceel oppervlakte
824 m2
Inhoud
573 m3
Aantal kamers
3
Aantal slaapkamers
1
Energie
Energieklasse
D
Isolatievormen
Dakisolatie, Muurisolatie, Dubbelglas
Verwarming
CV ketel, Gaskachels, Vloerverwarming gedeeltelijk
Bouwjaar
2015
Buitenruimte
Tuin
Tuin rondom
Hoofdtuin
Tuin rondom
Achterom
Ja
Kwaliteit
Verzorgd
Parkeergelegenheid
Garage
Vrijstaand hout
Parkeer faciliteiten
Openbaar parkeren, Op eigen terrein
Totaal aantal garages
1
Dak
Soort dak
Samengesteld dak
Kwaliteit dak
Riet
Voorzieningen
Voorzieningen
TV kabel, Natuurlijke ventilatie
Overig
Permanente bewoning
Ja
Onderhoud binnen
Goed
Onderhoud buiten
Goed
Huidig gebruik
Woonruimte
Huidige bestemming
Woonruimte
Bekijk alle specificaties

Interesse of meer weten?

Leuk dat je geïnteresseerd bent in deze woning! Als erkende makelaar staan wij voor je klaar om al je vragen te beantwoorden en om een bezichtiging in te plannen.

bureauhanze

    Met het versturen van dit formulier ga je akkoord met onze gebruiksvoorwaarden en privacybeleid.