Vackenordestraat 51

8081 TH Elburg
€ 419.000,- k.k.
3kamers
98 m2wonen
243 m2perceel

Algemene informatie

Aanvaarding
In overleg
Type woning
Hoekwoning
Energieklasse
C

Omschrijving

Ben je op zoek naar een gezellige en comfortabele hoekwoning op een fijne locatie?

Deze instapklare hoekwoning uit 1966 is in 2018 grotendeels gemoderniseerd. De charmante erker aan de voorzijde van de woning zorgt niet alleen voor een sfeervolle uitstraling, maar ook voor extra leefruimte en veel natuurlijk licht in de woonkamer.

De woning is goed onderhouden. In 2023 zijn de vloeren en muren na geïsoleerd, wat bijdraagt aan een een lagere energierekening en extra wooncomfort. Ook zijn er twee airco's' geplaatst (2024), dit zorgt voor een heerlijk binnenklimaat in zowel de zomer als winter.

De achtertuin, gunstig gelegen op het zonnige westen, is in 2021 volledig opnieuw aangelegd en is een heerlijke plek om te ontspannen, te barbecueën of te genieten van de zon. Dankzij de hoekligging heb je hier volop ruimte en privacy.

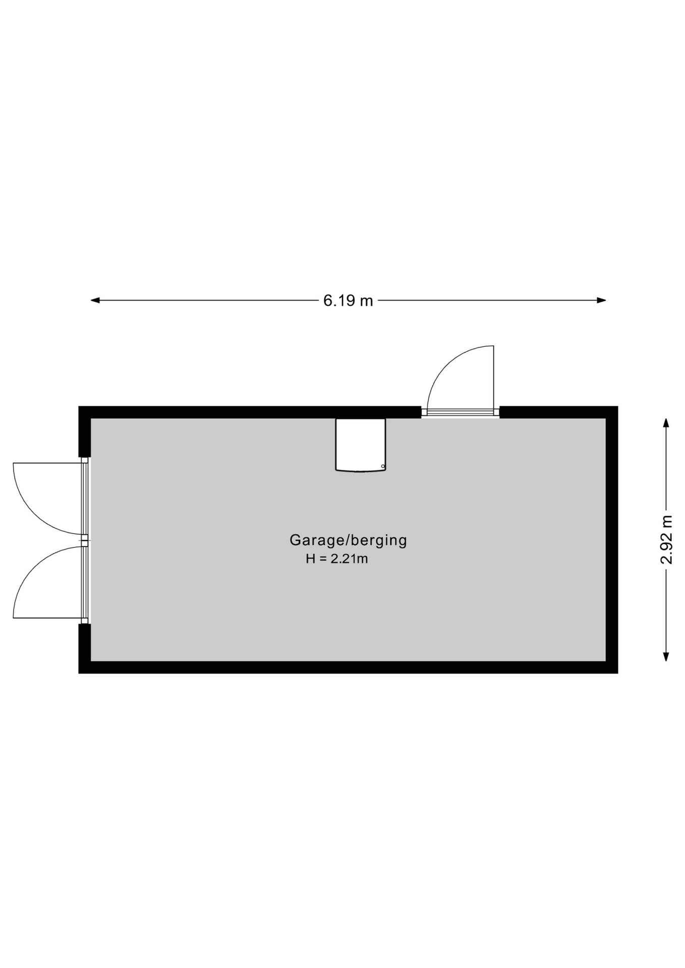
De garage/berging is voorzien van een nieuw dak (2024) en biedt diverse gebruiksmogelijkheden. Momenteel is deze in gebruik voor opslag en als hobbyruimte. In het verleden is deze ruimte ook als garage in gebruik geweest en leent zich daar nog steeds perfect voor.

Gelegen in een rustige, kindvriendelijke woonwijk met scholen, sportverenigingen en een winkelcentrum op loopafstand, is dit de ideale gezinswoning!

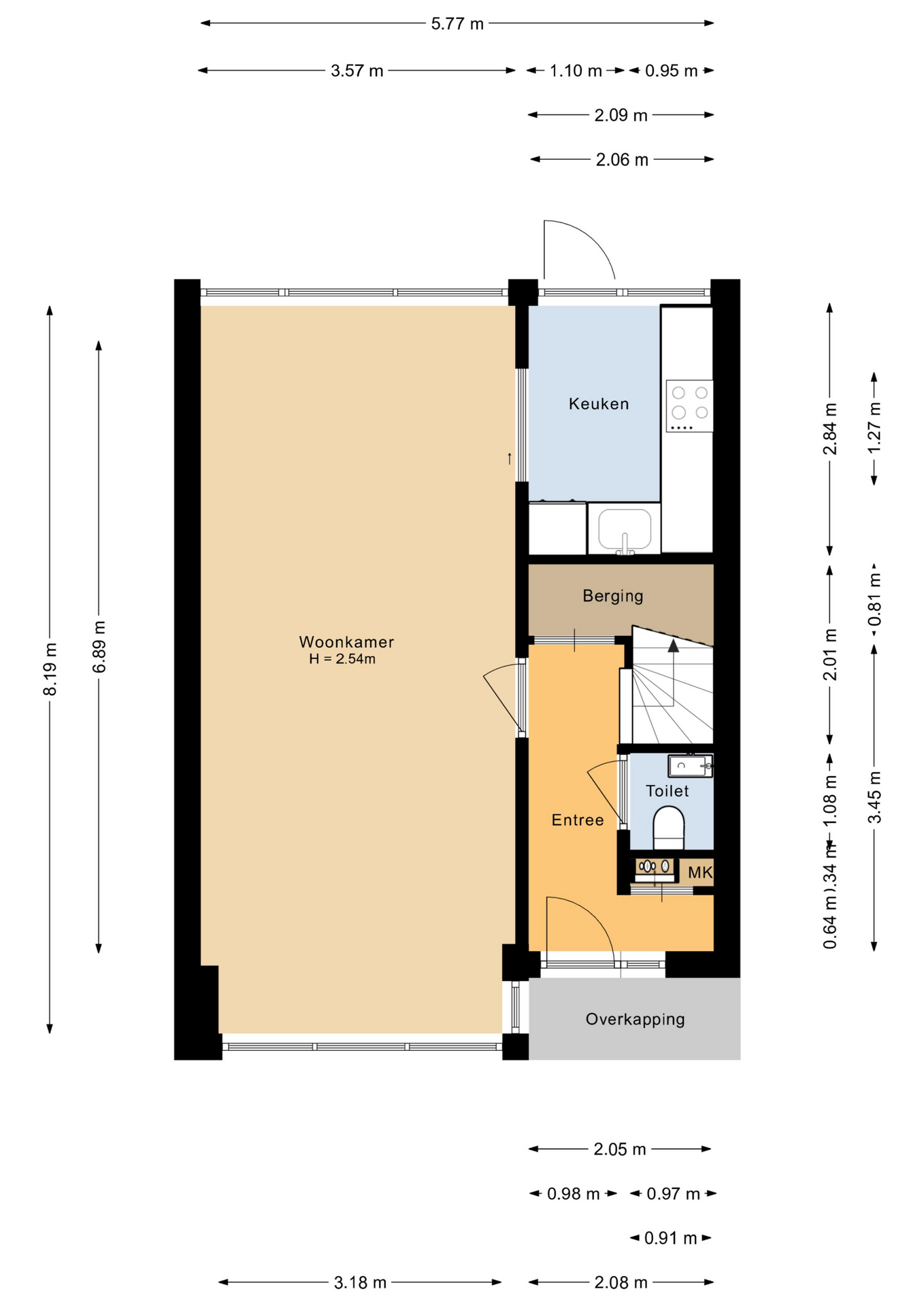
Begane grond:

Via de entree kom je in de hal met toegang tot de vernieuwde toiletruimte en de trap naar de eerste verdieping. De gezellige woonkamer met erker zorgt voor veel lichtinval en een fijne sfeer. Aan de achterzijde bevindt zich de open keuken, uitgevoerd in een praktische L-opstelling, uiteraard voorzien van alle benodigde inbouwapparatuur.

Verdieping:

De vernieuwde trapopgang met gedimde verlichting geeft toegang tot de overloop en drie slaapkamers. De moderne badkamer is compleet en stijlvol ingericht met een ruime inloopdouche, een wastafelmeubel en een tweede toilet.

Zolder:

De ruime zolderverdieping is bereikbaar via een vaste trap en voorzien van twee dakramen. Deze ruimte biedt volop mogelijkheden voor het realiseren van een vierde slaapkamer, een kantoor of hobbyruimte. Daarnaast vind je de Cv-opstelling en de aansluiting voor de aansluitingen voor de wasmachine en droger.

Kenmerken:

- Instap klaar en gemoderniseerd in 2018
- Perceeloppervlakte 243 m²
- Airco begane grond en verdieping (koelen en verwarmen)
- 6 Zonnepanelen aanwezig (2023 )
- Royale en zonnige achtertuin (2021 nieuw aangelegd) met veel privacy
- Kunststofkozijnen met dubbele beglazing en isolatie in de gevelpanelen
- Elektrisch bedienbare screens op de begane grond t.p.v. de erker
- Elektrische bedienbare rolluiken op de eerste verdieping
- Gelegen in een gezellige wijk met alle voorzieningen dichtbij

Lees de volledige omschrijving

Contact en info

Heb je vragen over deze woning of wil je een bezichtiging inplannen? Neem dan gerust contact met ons op, we helpen je graag verder!

Plan een bezichtiging

Kenmerken

Overdracht
Status
Verkocht o.v.
Koopprijs
€ 419.000,-
Aanvaarding
In overleg
Woonoppervlakte
98 m2
Inhoud
357 m3
Bouwvorm
Soort object
Woonhuis
Type woning
Hoekwoning
Soort
Eengezinswoning
Bouwjaar
1966
Bouwvorm
Bestaande bouw
Ligging
Aan rustige weg, In woonwijk
Overdracht
Woonoppervlakte
98 m2
Perceel oppervlakte
243 m2
Inhoud
357 m3
Aantal kamers
4
Aantal slaapkamers
3
Energie
Energieklasse
C
Isolatievormen
Dakisolatie, Muurisolatie, Vloerisolatie, Dubbelglas
Verwarming
CV ketel
Bouwjaar
2015
Buitenruimte
Tuin
Achtertuin, Voortuin, Zijtuin
Hoofdtuin
Achtertuin
Hoofdtuin oppervlakte
80 m2
Positie
West
Achterom
Nee
Kwaliteit
Verzorgd
Parkeergelegenheid
Garage
Vrijstaand steen
Parkeer faciliteiten
Openbaar parkeren
Totaal aantal garages
1
Dak
Soort dak
Zadeldak
Kwaliteit dak
Pannen
Voorzieningen
Voorzieningen
Rolluiken, Buitenzonwering, Airconditioning, Dakraam, Zonnepanelen
Overig
Permanente bewoning
Ja
Onderhoud binnen
Goed
Onderhoud buiten
Goed
Huidig gebruik
Woonruimte
Huidige bestemming
Woonruimte
Bekijk alle specificaties

Interesse of meer weten?

Leuk dat je geïnteresseerd bent in deze woning! Als erkende makelaar staan wij voor je klaar om al je vragen te beantwoorden en om een bezichtiging in te plannen.

bureauhanze

    Met het versturen van dit formulier ga je akkoord met onze gebruiksvoorwaarden en privacybeleid.