Veldbloemenlaan 84

8081 DV Elburg
€ 395.000,- k.k.
3kamers
128 m2wonen
128 m2perceel

Algemene informatie

Aanvaarding
In overleg
Type woning
Tussenwoning
Energieklasse
A

Omschrijving

In de rustige woonwijk “plan Pal, tweede fase” wordt u aangeboden een goed onderhouden eengezinswoning, die in perfecte staat van onderhoud verkeert. De woning is gebouwd in 2005 en uiteraard volledig geïsoleerd (vloer-, muur en dakisolatie en HR ++ glas), energielabel A.

De woning is fraai gelegen met voldoende parkeergelegenheid direct voor de woning. Dicht gelegen nabij de uitvalswegen, waar je op relatief korte afstand zo op de A-28 bent. Ook zijn de overige voorzieningen zoals scholen, winkels en sportvoorzieningen op korte afstand bereikbaar.

De achtertuin is op het zonnige zuiden gesitueerd en voorzien van een achterom, sierbestrating en een berging.

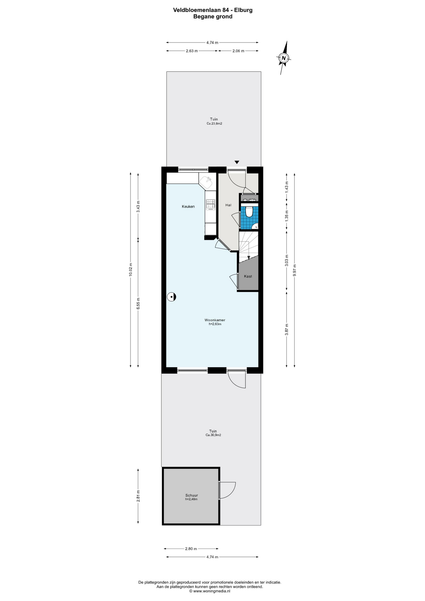
Begane grond:

Entree met meterkast, trapopgang en toegang tot de toiletruimte. De royale sfeervolle woonkamer is aan de achterzijde van de woning gelegen, alwaar u veel privacy heeft. Deze woonkamer is voorzien van nette laminaatvloer, strakke wanden en een sfeervolle houtkachel (kan worden overgenomen). De keuken in hoekopstelling en lichte kleurstelling bevindt zich aan de voorzijde. Het grootste deel van de inbouwapparatuur is in 2021 en 2023 vervangen. Vanuit de keuken heeft u vrij uitzicht.

Eerste verdieping:

Overloop. Twee slaapkamers zijn aan de achterzijde van de woning gelegen. De badkamer is ruim en voorzien van alle gemakken, te weten; ligbad, douchecabine, was meubel en 2e toilet. De slaapkamer aan de voorzijde is over de gehele breedte van de woning gesitueerd en heeft twee openslaande deuren met een frans balkon.

Tweede verdieping:

Royale zolder voorzien van een dakkapel, wat extra ruimte en lichtinval biedt en aan de voorzijde twee dakvensters. Eenvoudig zouden in deze ruimte twee afzonderlijke slaapkamers kunnen worden gecreëerd. Ook bevindt zicht hier de afsluitbare technische ruimte.

Derde verdieping:

Via vlizo trap te bereiken bergzolder.

Bijzonderheden:
- Woonoppervlakte 128 m²
- Perceel oppervlakte 128 m²
- Bouwjaar 2005
- 8 Zonnepanelen aanwezig.
- Energielabel A

Kortom:

Bent u op zoek naar een instapklare, duurzame woning, die in perfecte staat verkeert en op een goede locatie is gelegen, bel dan voor een vrijblijvende bezichtiging.

Aanvaarding in overleg

Lees de volledige omschrijving

Contact en info

Heb je vragen over deze woning of wil je een bezichtiging inplannen? Neem dan gerust contact met ons op, we helpen je graag verder!

Plan een bezichtiging

Kenmerken

Overdracht
Status
Verkocht
Koopprijs
€ 395.000,-
Aanvaarding
In overleg
Woonoppervlakte
128 m2
Inhoud
496 m3
Bouwvorm
Soort object
Woonhuis
Type woning
Tussenwoning
Soort
Eengezinswoning
Bouwjaar
2005
Bouwvorm
Bestaande bouw
Ligging
In woonwijk, Vrij uitzicht
Overdracht
Woonoppervlakte
128 m2
Perceel oppervlakte
128 m2
Inhoud
496 m3
Aantal kamers
5
Aantal slaapkamers
3
Energie
Energieklasse
A
Isolatievormen
Dakisolatie, Muurisolatie, Vloerisolatie, Dubbelglas
Verwarming
CV ketel
Bouwjaar
2020
Buitenruimte
Tuin
Achtertuin, Voortuin
Hoofdtuin
Achtertuin
Hoofdtuin oppervlakte
40 m2
Positie
Zuid
Achterom
Ja
Kwaliteit
Verzorgd
Bergruimte
Soort
Vrijstaand steen
Voorzieningen
Voorzien van elektra
Parkeergelegenheid
Garage
Geen garage
Voorzieningen
Voorzien van elektra
Parkeer faciliteiten
Openbaar parkeren
Dak
Soort dak
Zadeldak
Kwaliteit dak
Pannen
Voorzieningen
Voorzieningen
Mechanische ventilatie, Rolluiken, Buitenzonwering, Frans balkon, Glasvezel kabel
Overig
Permanente bewoning
Ja
Onderhoud binnen
Goed
Onderhoud buiten
Goed
Huidig gebruik
Woonruimte
Huidige bestemming
Woonruimte
Bekijk alle specificaties

Interesse of meer weten?

Leuk dat je geïnteresseerd bent in deze woning! Als erkende makelaar staan wij voor je klaar om al je vragen te beantwoorden en om een bezichtiging in te plannen.

bureauhanze

    Met het versturen van dit formulier ga je akkoord met onze gebruiksvoorwaarden en privacybeleid.