Verlengde Haerderweg 5Q5

8085 RJ Doornspijk
€ 109.000,- k.k.
2kamers
44 m2wonen
352 m2perceel

Algemene informatie

Aanvaarding
In overleg
Type woning
Vrijstaande woning

Omschrijving

Op een super plek van bospark “Dennenrhode” wordt u aangeboden een fraai chalet. Het chalet is gelegen op de hoek van het park en u loopt vanuit de tuin direct de “Veluwse bossen en de zandverstuiving” in.

Het chalet is goed onderhouden en kan voor eigen recreatie gebruikt worden of aangeschaft worden voor een goede investering (na definitief toestemming parkeigenaar).

Het betreft een mooi omsloten perceel waar u op diverse terrassen kunt genieten van de zon of schaduw en waar uw privacy gewaarborgd is.

Het chalet wordt compleet ingericht, gestoffeerd en gemeubileerd met een inventaris voor 4 personen aangeboden.

Bospark “Dennenrhode” is een klein gemoedelijk bungalowpark, te midden van de bossen, waar u volop kunt genieten van de natuur. Het park heeft een eigen buitenzwembad, wat kleine speelvoorzieningen voor de kinderen en eigen wasruimte. Ook de gezellig plaats Elburg met de historisch binnenstad is op enkele kilometers bereikbaar.

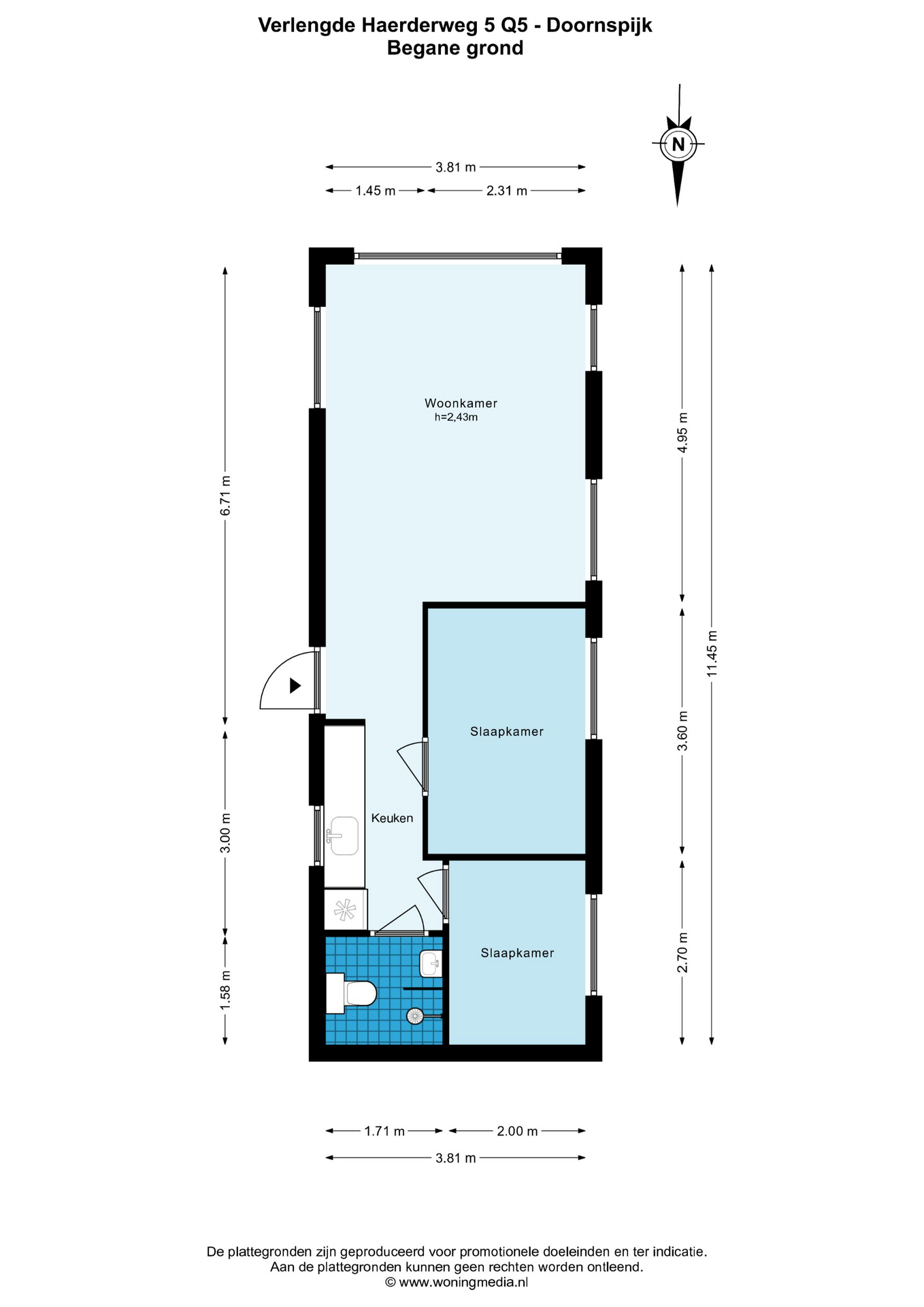
Indeling:

De woonkamer met uitzicht op de eigen tuin, bevindt zich aan de voorzijde. Aansluitend de keuken met een net keukenblok voorzien van inbouwapparatuur. Het chalet heeft twee slaapkamers, waarvan 1 met een vaste kastenwand. Badkamer met wastafel, douchegelegenheid en toilet.

Opmerking:
- Verwarming middels c.v. installatie
- Perceeloppervlakte 352 m²
- Woonoppervlakte 44 m²
- Parkkosten bedragen in 2023 ca. € 1.100,-
- Twee huisdieren per chalet toegestaan
- Permanente bewoning bestemming technisch niet toegestaan.
- Eventuele verhuur behoort tot de mogelijkheden na toestemming van het parkbeheer.

Kortom
Bent u op zoek naar een goed onderhouden chalet, welke is gelegen op een top locatie (eigen grond), informeer dan naar de mogelijkheden.

Aanvaarding in overleg

Lees de volledige omschrijving

Contact en info

Heb je vragen over deze woning of wil je een bezichtiging inplannen? Neem dan gerust contact met ons op, we helpen je graag verder!

Plan een bezichtiging

Kenmerken

Overdracht
Status
Verkocht
Koopprijs
€ 109.000,-
Aanvaarding
In overleg
Woonoppervlakte
44 m2
Inhoud
159 m3
Bouwvorm
Soort object
Woonhuis
Type woning
Vrijstaande woning
Soort
Eengezinswoning
Bouwjaar
1999
Bouwvorm
Bestaande bouw
Ligging
Aan bosrand, Buiten bebouwde kom, In bosrijke omgeving
Overdracht
Woonoppervlakte
44 m2
Perceel oppervlakte
352 m2
Inhoud
159 m3
Aantal kamers
3
Aantal slaapkamers
2
Energie
Isolatievormen
Dakisolatie, Muurisolatie, Dubbelglas
Verwarming
CV ketel
Buitenruimte
Tuin
Tuin rondom
Hoofdtuin
Tuin rondom
Achterom
Ja
Kwaliteit
Normaal
Bergruimte
Soort
Vrijstaand hout
Voorzieningen
Voorzien van elektra
Parkeergelegenheid
Garage
Geen garage
Voorzieningen
Voorzien van elektra
Parkeer faciliteiten
Op eigen terrein
Parkeren capaciteit
1
Dak
Soort dak
Schilddak
Kwaliteit dak
Bitumineuze Dakbedekking
Voorzieningen
Voorzieningen
TV kabel
Overig
Permanente bewoning
Nee
Onderhoud binnen
Goed
Onderhoud buiten
Goed
Huidig gebruik
Woonruimte
Huidige bestemming
Woonruimte
Bekijk alle specificaties

Interesse of meer weten?

Leuk dat je geïnteresseerd bent in deze woning! Als erkende makelaar staan wij voor je klaar om al je vragen te beantwoorden en om een bezichtiging in te plannen.

bureauhanze

    Met het versturen van dit formulier ga je akkoord met onze gebruiksvoorwaarden en privacybeleid.