Beemdweg 3

8084 GA 't Harde
€ 379.000,- k.k.
5kamers
108 m2wonen
127 m2perceel

Algemene informatie

Aanvaarding
In overleg
Type woning
Tussenwoning
Energieklasse
B

Omschrijving

Instapklare middenwoning op kindvriendelijke locatie !

Op een rustige en kindvriendelijke locatie bevindt zich deze goed onderhouden middenwoning met vrijstaande stenen berging. De huidige bewoners hebben de begane grond de afgelopen jaren grotendeels gemoderniseerd; zo is in 2024 een nieuwe, moderne keuken geplaatst.

De woning ligt zeer gunstig ten opzichte van diverse voorzieningen zoals een winkelcentrum, speeltuintje, basisscholen en sportfaciliteiten. Ook het NS-station en de uitvalswegen zijn op korte afstand gelegen.

Begane grond:
Entree met trapkast, meterkast en trapopgang naar de eerste verdieping. De toiletruimte is voorzien van een hangend toilet en fonteintje. De sfeervolle woonkamer is afgewerkt met een fraaie visgraat PVC-vloer met vloerverwarming, strakke wanden en plafonds, wat zorgt voor een moderne uitstraling.
De moderne keuken met kookeiland beschikt over diverse inbouwapparatuur, waaronder een elektrische kookplaat met geïntegreerde afzuiging, Quooker en voldoende werk- en bergruimte.

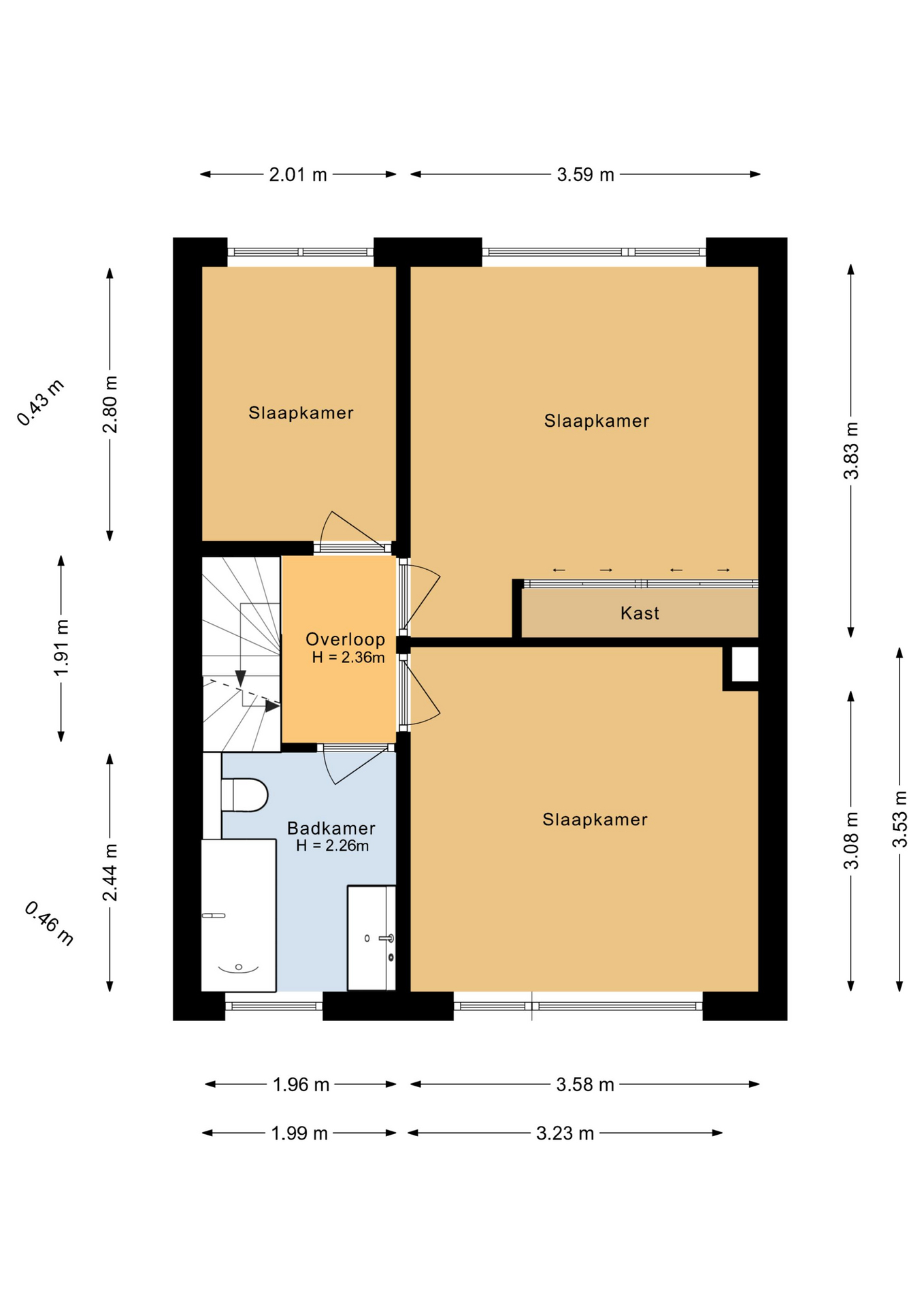
Eerste verdieping:
Overloop met toegang tot drie nette en goed afgewerkte slaapkamers. De grote slaapkamer aan de achterzijde beschikt over een vaste kastenwand.
De badkamer is voorzien van een ligbad met douchegelegenheid, dubbele wastafelmeubel en een tweede zwevend toilet.

Tweede verdieping:
Hier bevindt zich een vierde volwaardige slaapkamer, ideaal als werk- of logeerkamer. Op de overloop zijn de HR-cv-ketel en de aansluitingen voor wasmachine en droger gesitueerd.

Vliering:
Via een luik in de slaapkamer op de 2e verdieping is de vliering bereikbaar, ideaal als extra bergruimte.

Buitenruimte:
Aan de achterzijde van de woning bevindt zich een glazen overkapping. De achtertuin is verzorgd aangelegd met bestrating, plantenbakken en nette schuttingen. Tevens is er een vrijstaande stenen berging aanwezig.

Bijzonderheden:
• Woonoppervlakte: 108 m²
• Perceeloppervlakte: 127 m²
• Energielabel: B
• Moderne keuken (2024)
• Kindvriendelijke woonomgeving

Lees de volledige omschrijving

Contact en info

Heb je vragen over deze woning of wil je een bezichtiging inplannen? Neem dan gerust contact met ons op, we helpen je graag verder!

Plan een bezichtiging

Kenmerken

Overdracht
Status
Verkocht
Koopprijs
€ 379.000,-
Aanvaarding
In overleg
Woonoppervlakte
108 m2
Inhoud
383 m3
Bouwvorm
Soort object
Woonhuis
Type woning
Tussenwoning
Soort
Eengezinswoning
Bouwjaar
1975
Bouwvorm
Bestaande bouw
Ligging
Aan rustige weg, In woonwijk
Overdracht
Woonoppervlakte
108 m2
Perceel oppervlakte
127 m2
Inhoud
383 m3
Aantal kamers
6
Aantal slaapkamers
5
Energie
Energieklasse
B
Isolatievormen
Dakisolatie, Vloerisolatie, Grotendeels dubbelglas
Verwarming
CV ketel, Vloerverwarming gedeeltelijk
Buitenruimte
Tuin
Achtertuin, Voortuin
Hoofdtuin
Achtertuin
Hoofdtuin oppervlakte
51 m2
Positie
Oost
Achterom
Ja
Kwaliteit
Verzorgd
Bergruimte
Soort
Vrijstaand steen
Voorzieningen
Voorzien van elektra
Parkeergelegenheid
Garage
Geen garage
Voorzieningen
Voorzien van elektra
Parkeer faciliteiten
Openbaar parkeren
Dak
Soort dak
Zadeldak
Kwaliteit dak
Pannen
Voorzieningen
Voorzieningen
Rolluiken, Dakraam, Glasvezel kabel, Natuurlijke ventilatie
Overig
Permanente bewoning
Ja
Onderhoud binnen
Goed
Onderhoud buiten
Goed
Huidig gebruik
Woonruimte
Huidige bestemming
Woonruimte
Bekijk alle specificaties

Interesse of meer weten?

Leuk dat je geïnteresseerd bent in deze woning! Als erkende makelaar staan wij voor je klaar om al je vragen te beantwoorden en om een bezichtiging in te plannen.

bureauhanze

    Met het versturen van dit formulier ga je akkoord met onze gebruiksvoorwaarden en privacybeleid.