Dokter Bruinsweg 18

8085 BV Doornspijk
€ 635.000,- k.k.
8kamers
172 m2wonen
455 m2perceel

Algemene informatie

Aanvaarding
In overleg
Type woning
Twee onder één kapwoning
Energieklasse
A

Omschrijving

Sfeervolle twee-onder-een-kapwoning met vrij uitzicht en maar liefst 6 slaapkamers!

Aan de rand van de geliefde nieuwbouwwijk “de Waterlanden I” in Doornspijk staat deze royale en onder architectuur gebouwde twee-onder-een-kapwoning. Een heerlijk ruim familiehuis met zes slaapkamers, een carport, meerdere bergingen én een prachtig vrij uitzicht over de weilanden aan de achterzijde.

De woning is gebouwd in 2004 met hoogwaardige materialen, volledig geïsoleerd, uitstekend onderhouden en voorzien van 14 zonnepanelen. Met een woonoppervlakte van maar liefst 172 m² en een perceel van 455 m² is dit een ideale woning voor grotere gezinnen of iedereen die royaal wil wonen.

De zonnige voortuin is onderhoudsarm aangelegd en zorgt de beukenhaag voor privacy. Aan de zijkant van de woning bevindt zich een ruime oprit met plaats voor meerdere auto’s.

De achtertuin is een echte eyecatcher: meerdere terrassen, een gazon, een houten berging met volière én een prachtig tuinhuis met overkapping. Deze is ingericht als gezellige tuinkamer met keukenblok en bar, dé plek om te ontspannen met een goed boek, een glas wijn of om tot in de late uurtjes te genieten van het vrije weidse uitzicht.

Doornspijk biedt de perfecte balans tussen landelijke rust en stedelijk gemak. Elburg en Nunspeet liggen op korte afstand voor dagelijkse voorzieningen, terwijl grotere steden zoals Zwolle en Harderwijk binnen een half uur te bereiken zijn voor werk, cultuur en uitgebreide winkelmogelijkheden.

Het dorp ligt te midden van prachtige groene gebieden, zoals de Veluwe met haar uitgestrekte bossen en heidevelden, en het nabijgelegen Veluwemeer. Deze natuurlijke omgeving biedt volop mogelijkheden voor wandelen, fietsen en watersporten, en draagt bij aan een gezonde, rustige leefomgeving

Begane grond:

Zij-entree met trapopgang en toiletruimte met zwevend toilet en fonteintje. De royale woonkamer aan de voorzijde is licht en sfeervol en voorzien van een fraaie PVC-vloer. Aan de achterzijde bevindt zich de eetkamer met open hoekkeuken, uitgerust met diverse inbouwapparatuur zoals een vaatwasser, koelkast, oven, kookplaat en afzuigkap. Aansluitend is de bijkeuken met aansluitingen voor wasmachine en droger en toegang tot één van de bergingen.

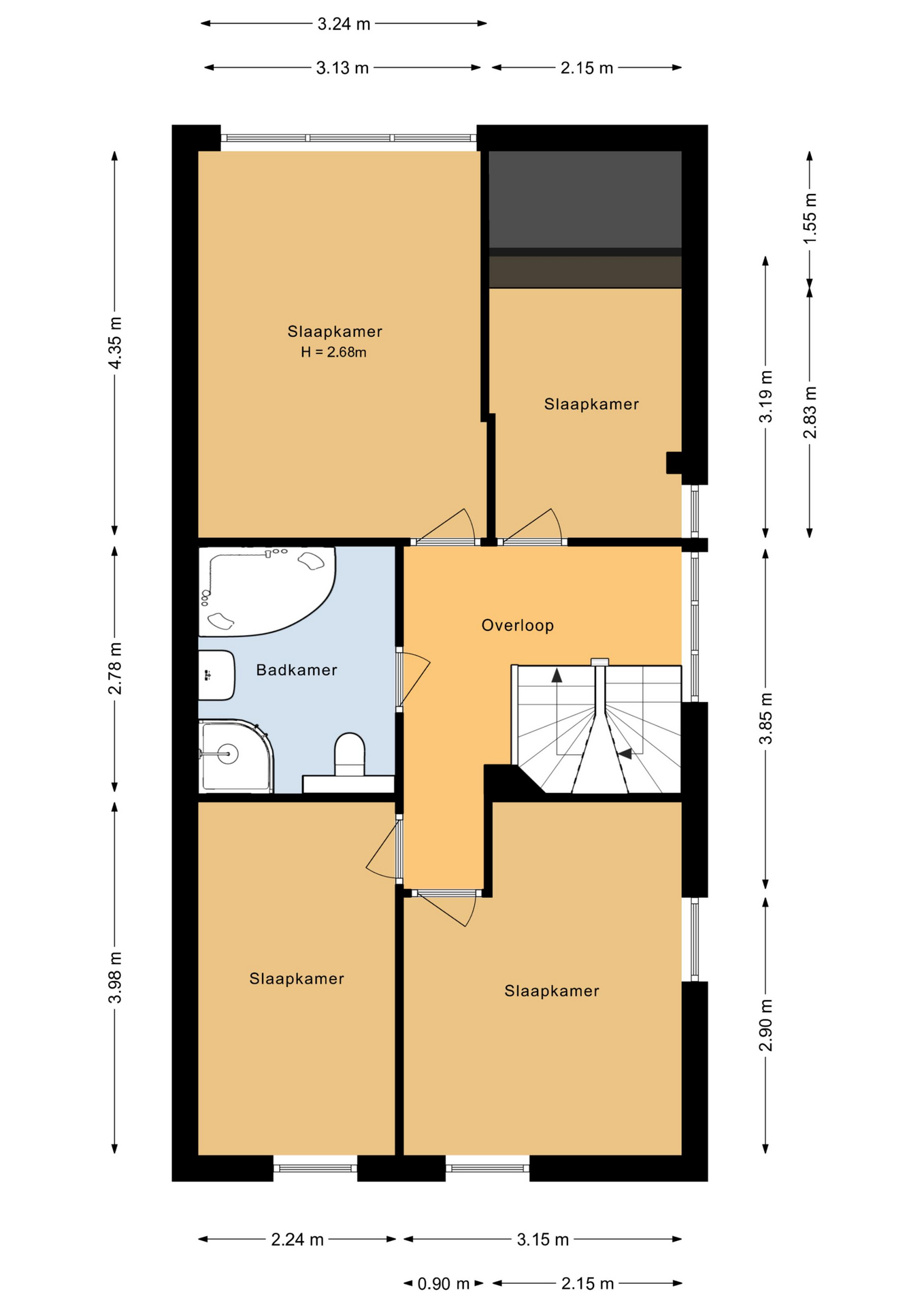
Eerste verdieping:

Overloop met toegang tot vier ruime slaapkamers. De badkamer in lichte kleurstelling beschikt over een ligbad, separate douche, wastafel en een tweede toilet.

Tweede verdieping:

Voorzolder en nog eens twee volwaardige slaapkamers. Vanuit de slaapkamer aan de voorzijde is de praktische bergruimte bereikbaar, waar tevens de opstelling van de nieuwe cv-ketel (december 2025) te vinden is.

Bijzonderheden:
- Woonoppervlakte: 172 m²
- Perceeloppervlakte: 455 m²
- Bouwjaar: 2004
- 6 slaapkamers
- Energielabel A
- 14 zonnepanelen
- Vrij uitzicht over de weilanden

Bent u op zoek naar een ruime, sfeervolle woning op een unieke locatie? Dan is deze prachtige twee-onder-een-kapwoning absoluut een bezichtiging waard!

Lees de volledige omschrijving

Contact en info

Heb je vragen over deze woning of wil je een bezichtiging inplannen? Neem dan gerust contact met ons op, we helpen je graag verder!

Plan een bezichtiging

Kenmerken

Overdracht
Status
Verkocht
Koopprijs
€ 635.000,-
Aanvaarding
In overleg
Woonoppervlakte
172 m2
Inhoud
746 m3
Bouwvorm
Soort object
Woonhuis
Type woning
Twee onder één kapwoning
Soort
Eengezinswoning
Bouwjaar
2004
Bouwvorm
Bestaande bouw
Ligging
Aan rustige weg, In woonwijk
Overdracht
Woonoppervlakte
172 m2
Perceel oppervlakte
455 m2
Inhoud
746 m3
Aantal kamers
8
Aantal slaapkamers
8
Energie
Energieklasse
A
Isolatievormen
Dakisolatie, Muurisolatie, Vloerisolatie
Verwarming
CV ketel, Vloerverwarming gedeeltelijk
Bouwjaar
2025
Buitenruimte
Tuin
Achtertuin, Voortuin, Zijtuin
Hoofdtuin
Achtertuin
Hoofdtuin oppervlakte
140 m2
Positie
Noordwest
Achterom
Nee
Kwaliteit
Verzorgd
Bergruimte
Soort
Vrijstaand hout
Voorzieningen
Voorzien van elektra
Parkeergelegenheid
Garage
Aangebouwd steen
Voorzieningen
Voorzien van elektra
Parkeer faciliteiten
Openbaar parkeren, Op eigen terrein
Totaal aantal garages
1
Dak
Soort dak
Zadeldak
Kwaliteit dak
Pannen
Voorzieningen
Voorzieningen
Mechanische ventilatie, Zonnepanelen
Overig
Permanente bewoning
Ja
Onderhoud binnen
Goed
Onderhoud buiten
Goed
Huidig gebruik
Woonruimte
Huidige bestemming
Woonruimte
Bekijk alle specificaties

Interesse of meer weten?

Leuk dat je geïnteresseerd bent in deze woning! Als erkende makelaar staan wij voor je klaar om al je vragen te beantwoorden en om een bezichtiging in te plannen.

bureauhanze

    Met het versturen van dit formulier ga je akkoord met onze gebruiksvoorwaarden en privacybeleid.