Het Straatje 27
Algemene informatie
Omschrijving
Door de enorme belangstelling voor deze woning is het (helaas) niet meer mogelijk een bezichtiging aan te vragen!
Grijp uw kans en maak van deze woonboerderij uw droomhuis!
Op een prachtige locatie aan Het Straatje in Elburg wordt u deze karakteristieke woonboerderij aangeboden, gelegen op een royaal perceel van circa 1.325 m². Een unieke kans voor liefhebbers van ruimte, rust en authenticiteit!
De woonboerderij, oorspronkelijk gebouwd rond 1900, biedt volop mogelijkheden om geheel naar eigen wens te renoveren, verduurzamen en moderniseren. Hier kunt u uw droomwoning realiseren op een plek met karakter en historie.
Op het erf bevinden zich diverse schuren en bijgebouwen met een ruime oppervlakte, ideaal voor hobby, opslag of werk aan huis. De voortuin is fraai omzoomd met een beukenhaag en beschikt over een eigen oprit, waardoor u eenvoudig met meerdere voertuigen het erf kunt betreden. De ligging is centraal, met een goede bereikbaarheid nabij de rondweg.
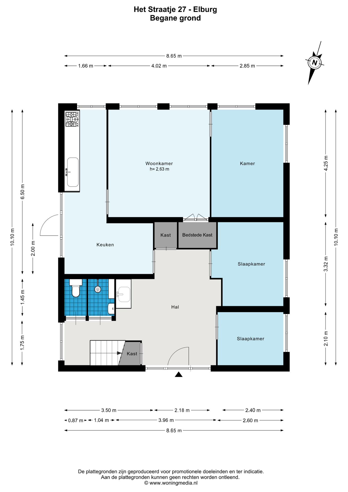
Begane grond:
Via de voormalige deel (tevens achteringang) bereikt u de centrale hal, die toegang geeft tot twee slaapkamers en een eenvoudige badkamer met douche en een toilet.
De woonkamer is gesitueerd aan de voorzijde van de woning en biedt een prettige lichtinval. Aangrenzend vindt u de eenvoudige keuken en de karakteristieke opkamer.
Eerste verdieping
Ruime zolderverdieping met volop mogelijkheden tot herindeling en het creëren van extra woonruimte.
Bijzonderheden
• Bouwjaar: ca. 1900
• Perceeloppervlakte: ca. 1.325 m²
• Woonoppervlakte ca. 123 m²
• Veel schuren en bijgebouwen aanwezig, totaal ca. 420 m²
• Volledig naar eigen inzicht te moderniseren
• Verkoop in huidige staat (“as is, where is”)
Door de enorme belangstelling voor deze woning is het (helaas) niet meer mogelijk een bezichtiging aan te vragen!
Contact en info
Heb je vragen over deze woning of wil je een bezichtiging inplannen? Neem dan gerust contact met ons op, we helpen je graag verder!
Plan een bezichtigingKenmerken
Interesse of meer weten?
Leuk dat je geïnteresseerd bent in deze woning! Als erkende makelaar staan wij voor je klaar om al je vragen te beantwoorden en om een bezichtiging in te plannen.