Honingsveldweg 2

8081 LP Elburg
€ 895.000,- k.k.
3kamers
224 m2wonen
1.096 m2perceel

Algemene informatie

Aanvaarding
In overleg
Type woning
Vrijstaande woning
Energieklasse
F

Omschrijving

Verrassend royaal pand met grote tuin aan de achterzijde!

Een woning die u niet zou verwachten achter de voorgevel, deze locatie is namelijk met recht uniek te noemen! De fraaie VRIJSTAANDE VILLA MET ROYALE INPANDIGE RUIMTE is gelegen onder de rook van de historische molen in “Oosterdorp”. Het geheel staat op een perceel van 1.096 m².

Het voormalige bedrijfspand is in 2001 volledig en bijzonder vakkundig verbouwd tot een luxe moderne villa, waarbij uiterst zorgvuldig is gekozen voor de samenstelling van hoogwaardige eigentijdse materialen.
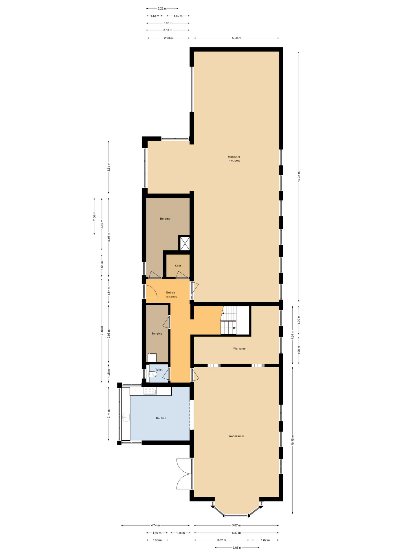
Verrassend is de ruimte in de woning, die met ca. 224 m² woonoppervlak prettig is ingedeeld.

Het voormalige bedrijfsgedeelte heeft een vloeroppervlakte van ca. 133 m², deze ruimte is thans in gebruik als opslag/ magazijnruimte. Deze ruimte is ook uitstekend geschikt voor andere doeleinden, te weten; praktijk, atelier of te verbouwen naar mantelzorgunit.

Op deze geweldige locatie treft men aan de achterzijde van het pand de vrije tuin met uitzicht op de oude molen en een aantal schapenweitjes. Het perceel is ruim 1096 m2, dus privacy en rust is hier gegarandeerd! Binnen enkele minuten bereikt u de volstrekte rust van de fascinerende natuurgebieden.

Begane grond:

Via de stijlvolle voordeur komt u in een statige hal alwaar u toegang heeft tot het toilet, de bijkeuken met aansluiting voor de wasmachine en droger.

Het toilet is tot het plafond betegeld en voorzien van een zwevend toilet met fonteintje. Royale living van maar liefst 73 m², deze is aan de voorzijde riant uitgebouwd middels een erker.

De living heeft een warme uitstraling door de fraaie eiken vloer en zicht op eigen tuin. Rondom geniet van veel daglicht door de vele ramen. In de zijvleugel is de fraaie keuken aanwezig.

De keuken staat opgesteld in een U-vorm. De keuken is voorzien van diverse apparatuur, te weten; heteluchtoven, magnetron, inductiekookplaat, RVS afzuigschouw, koelkast met vriesvak en geïntegreerde vaatwasser.
Op de begane grond is tevens een extra berg- en stookruimte aanwezig.

1e verdieping:

Overloop. De openslaande deuren geven toegang tot het royaal dakterras. Drie ruime slaapkamers, welke allen voorzien zijn van een dakkapel en extra bergruimte, badkamer, deze is stijlvol tot het plafond betegeld. De badkamer is voorzien van ligbad, afzonderlijke douche, toilet en wastafelmeubel.

Algemeen:
• Beregeningsinstallatie aanwezig;
• Energielabel F.
• Uitstekende verbinding met de autosnelweg A-28 op circa 5 km afstand gelegen;
• Woonoppervlakte 224 m2
Kortom: Bent u op zoek naar een royale villa met royale inpandige ruimte, bel dan voor een vrijblijvende bezichtiging!

Lees de volledige omschrijving

Contact en info

Heb je vragen over deze woning of wil je een bezichtiging inplannen? Neem dan gerust contact met ons op, we helpen je graag verder!

Plan een bezichtiging

Kenmerken

Overdracht
Koopprijs
€ 895.000,-
Aanvaarding
In overleg
Woonoppervlakte
224 m2
Inhoud
1.264 m3
Bouwvorm
Soort object
Woonhuis
Type woning
Vrijstaande woning
Soort
Eengezinswoning
Bouwjaar
1950
Bouwvorm
Bestaande bouw
Ligging
In woonwijk
Overdracht
Woonoppervlakte
224 m2
Perceel oppervlakte
1.096 m2
Inhoud
1.264 m3
Aantal kamers
5
Aantal slaapkamers
3
Energie
Energieklasse
F
Isolatievormen
Dakisolatie, Grotendeels dubbelglas
Verwarming
CV ketel
Bouwjaar
2001
Buitenruimte
Tuin
Achtertuin, Zijtuin
Hoofdtuin
Achtertuin
Hoofdtuin oppervlakte
594 m2
Positie
Oost
Achterom
Nee
Kwaliteit
Normaal
Bergruimte
Soort
Inpandig
Parkeergelegenheid
Garage
Aangebouwd steen
Parkeer faciliteiten
Op eigen terrein
Parkeren capaciteit
3
Totaal aantal garages
1
Dak
Soort dak
Schilddak
Kwaliteit dak
Pannen
Voorzieningen
Voorzieningen
Buitenzonwering
Overig
Permanente bewoning
Ja
Onderhoud binnen
Goed
Onderhoud buiten
Goed
Huidig gebruik
Woonruimte
Huidige bestemming
Woonruimte
Bekijk alle specificaties

Interesse of meer weten?

Leuk dat je geïnteresseerd bent in deze woning! Als erkende makelaar staan wij voor je klaar om al je vragen te beantwoorden en om een bezichtiging in te plannen.

bureauhanze

    Met het versturen van dit formulier ga je akkoord met onze gebruiksvoorwaarden en privacybeleid.