Jongkindhoek 26
Algemene informatie
Omschrijving
Complete starterswoning met nok verhogende dakkapel en A Label !!!
Gelegen op een aantrekkelijke groene locatie, ligt deze prima onderhouden tussenwoning met inpandige berging en nok verhogende dakkapel. Door de nok verhogende dakkapel is er een ruime derde slaapkamer op de 2de verdieping aanwezig.
De woning is gelegen in de woonwijk Oenenburg in Nunspeet Oost, op een rustige locatie aan de rand van de bebouwde kom. Ideaal is dat u hier verrassend dichtbij de voorzieningen woont. Het winkelcentrum “De Binnenhof” is op enkele minuten loopafstand te vinden. Maar ook de bossen, het dorpscentrum en het sportpark en zwembad “De Wiltsangh” zijn op korte afstand te bereiken. De woning zelf is gebouwd in 1977, en is in de afgelopen jaren gemoderniseerd en goed onderhouden.
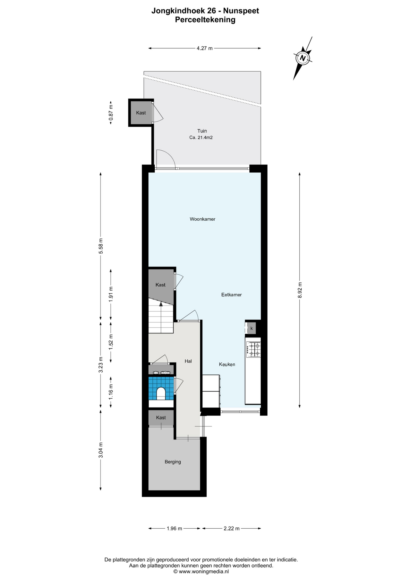
De gezellige achtertuin die gunstig op het zuidoosten is gelegen, beschikt over een tuinkast, een zonnig terras en een leuke overkapping met buitenkeukentje.
Het geheel staat op een perceel van 122 m². De woning heeft een woonoppervlak van ca. 106 m².
Er is een energie label A aanwezig, mede door de aanwezigheid van:
- 6 zonnepanelen
- een airco unit
- HR ++ beglazing
- vloer-, muur-, en dakisolatie
Begane grond:
U komt binnen via de entree, hier zit eveneens de toiletruimte, de trapopgang en deur naar de inpandige berging. De tuingerichte woonkamer beschikt over een trapkast, deur naar de tuin en de half open keuken. De keuken is voorzien van een recht keukenblok met aan de overzijde nog een keukenblok.
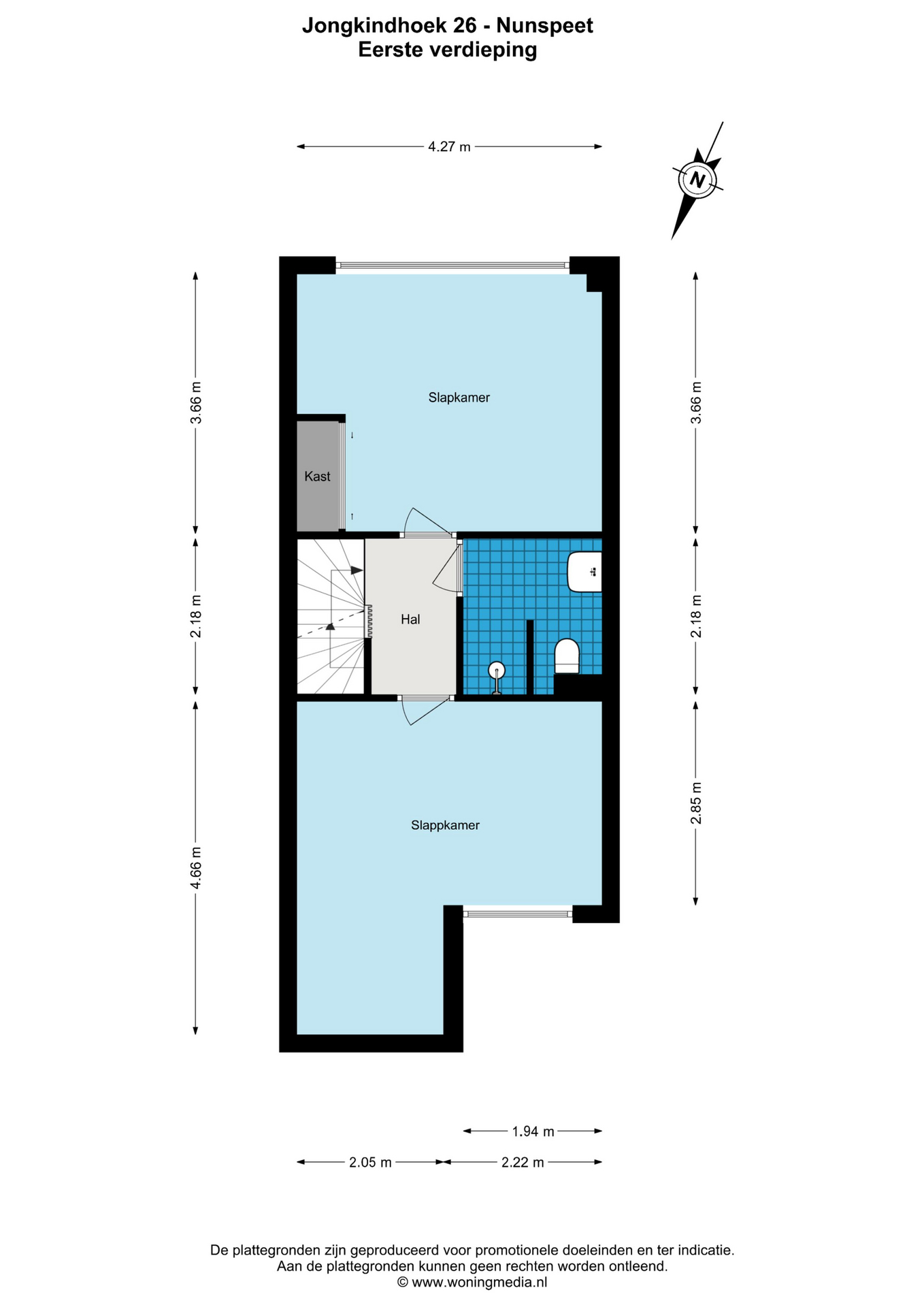
Verdieping:
Via de overloop zijn de twee ruime slaapkamers te bereiken. De slaapkamer aan de achterzijde beschikt over een airco unit. In het midden zit de badkamer met een douchehoek met glazen wanden, een 2de toilet en een wastafelmeubel.
Zolder:
Via een vaste trap bereikt u de voorzolder met dakraam, de HR combiketel, de mechanische ventilatie unit en aansluiting voor de wasmachine. Aan de achterzijde bevindt zich de derde slaapkamer met kunststof ramen en kozijnen en een laminaatvloer.
Contact en info
Heb je vragen over deze woning of wil je een bezichtiging inplannen? Neem dan gerust contact met ons op, we helpen je graag verder!
Plan een bezichtigingKenmerken
Interesse of meer weten?
Leuk dat je geïnteresseerd bent in deze woning! Als erkende makelaar staan wij voor je klaar om al je vragen te beantwoorden en om een bezichtiging in te plannen.