Korenmolen 18
Algemene informatie
Omschrijving
Uitgebouwde middenwoning uit 2020!
Deze jonge tussenwoning is gelegen op de laatste nieuwbouwlocatie "De Molendijkjes". Aan de achterzijde is de woning ca. 1,2 meter uitgebouwd met aansluitend een gezellige overkapping.
De achtertuin is heerlijk gelegen op het zuiden en is diep ca. 13,5 meter. Naast de overkapping en het zonneterras zijn plantenborders aanwezig. Achter in de tuin bevindt zich de vrijstaande houten berging. In de overkapping zitten gezellige spotjes en elektrische zonwering.
Het geheel staat op een perceel van 144 m² en is volledig geïsoleerd en voorzien van 12 zonnepanelen (Energielabel A+++). De woning heeft een woonoppervlak van ca. 98 m², dit is excl. de zolder van 22 m² (overig inpandig), dus totaal 120 m².
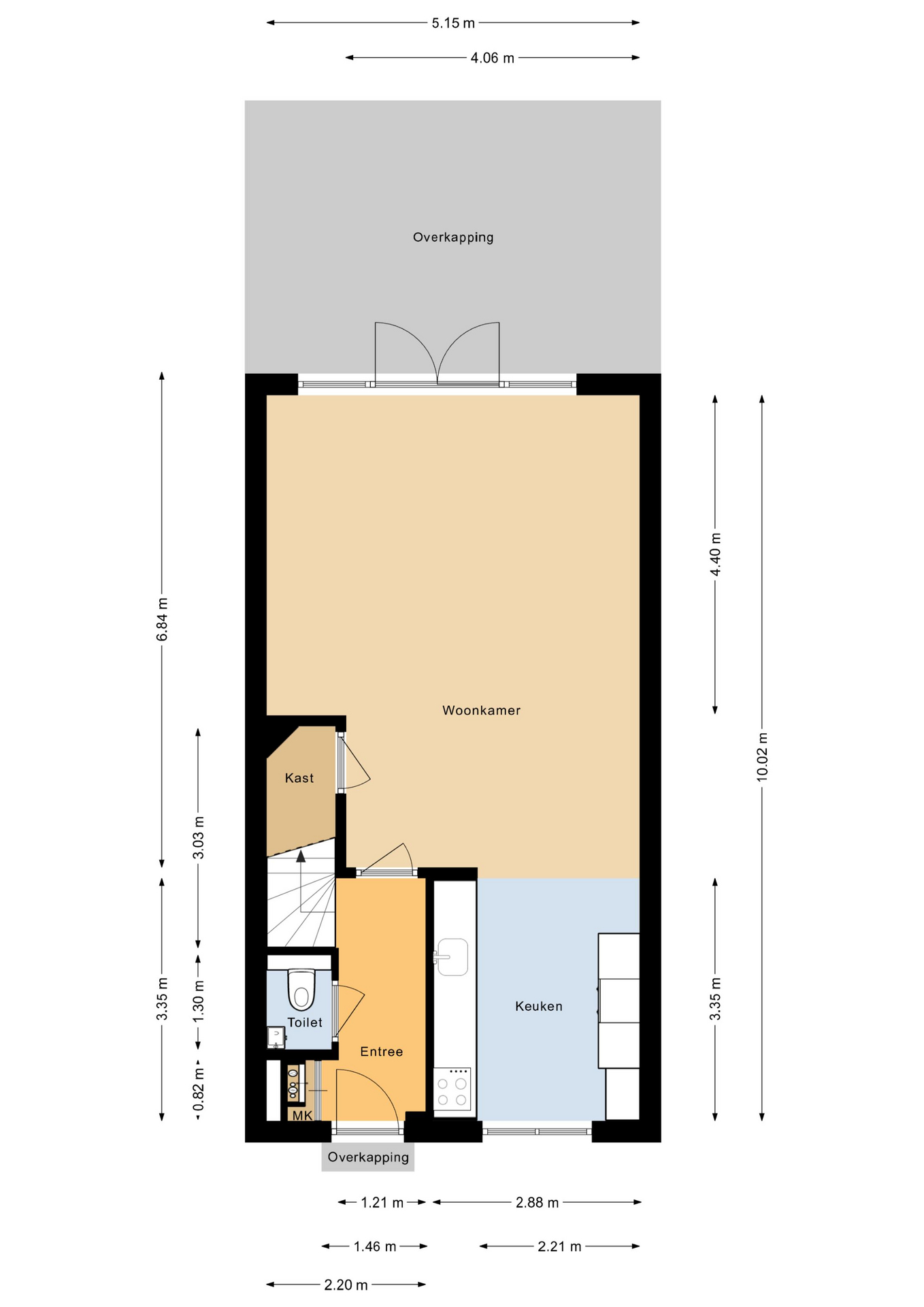
Begane grond:
Via het entree zijn het toilet en de trapkast te bereiken. De tuingerichte woonkamer is door de uitbouw aan de achterzijde een heerlijke leefruimte geworden met openslaande deuren naar het terras onder de overkapping.
De halfopen keuken bestaat uit twee tegenover elkaar gelegen keukenblokken met diverse inbouwapparatuur en en een kokend water kraan.
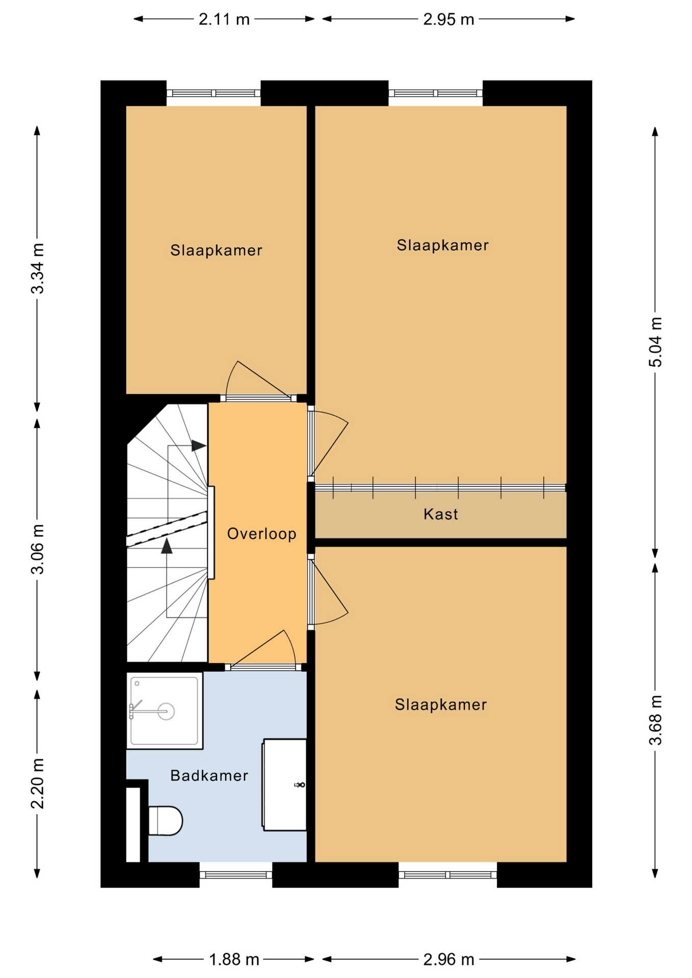
Verdieping:
Middels de overloop zijn de drie slaapkamers te bereiken.
In de moderne badkamer vindt u een inloopdouche met glazen scherm, tweede toilet en een wastafel meubel.
Zolder:
Mooie grote open bergzolder met dakraam, aansluiting voor de wasmachine en droger en een ruimte met daarin de warmtepomp.
Contact en info
Heb je vragen over deze woning of wil je een bezichtiging inplannen? Neem dan gerust contact met ons op, we helpen je graag verder!
Plan een bezichtigingKenmerken
Interesse of meer weten?
Leuk dat je geïnteresseerd bent in deze woning! Als erkende makelaar staan wij voor je klaar om al je vragen te beantwoorden en om een bezichtiging in te plannen.