Kruisakkerweg 11

8084 BK 't Harde
€ 335.000,- k.k.
3kamers
79 m2wonen
136 m2perceel

Algemene informatie

Aanvaarding
In overleg
Type woning
Tussenwoning
Energieklasse
C

Omschrijving

Op een fijne, centrale plek in 't Harde staat deze uitgebouwde eengezinswoning met vrijstaande stenen berging te koop. Een heerlijke (starters)woning waar licht en een praktische indeling samenkomen.

Je woont hier op loop- en fietsafstand van het vernieuwde winkelcentrum, de prachtige Veluwse bossen, het treinstation én met de A28 om de hoek. Daarnaast bevinden zich een speeltuintje, basisscholen en diverse sportfaciliteiten in de directe omgeving. Een perfecte combinatie van rust, natuur en uitstekende bereikbaarheid.

Dankzij de erker aan de voorzijde is de woonkamer niet alleen ruimer, maar ook heerlijk licht. Een fijne plek om thuis te komen! Aan de achterzijde bevindt zich een praktische bijkeuken, ideaal voor extra opslag en het witgoed.

De zonnige, onderhoudsvriendelijk aangelegde achtertuin ligt op het zuiden en is voorzien van sierbestrating. Hier geniet je volop van de zon. Bovendien is de tuin bereikbaar via een handige achterom.

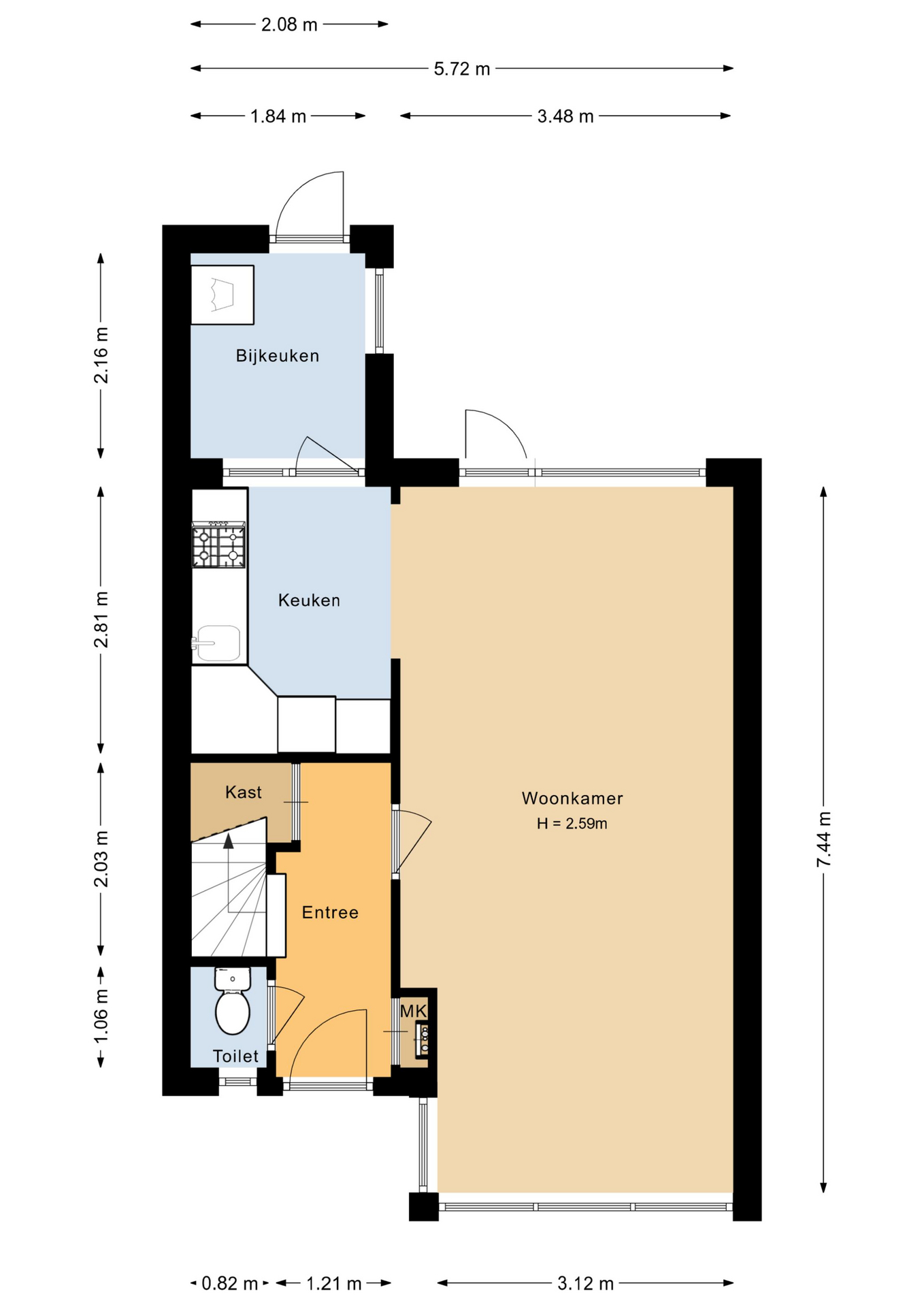
Begane grond:

Entree met meterkast, trapopgang en toegang tot de toiletruimte. De sfeervolle en lichte woonkamer is voorzien van een laminaatvloer en biedt extra leefruimte dankzij de erker.

De halfopen keuken in hoekopstelling beschikt over diverse inbouwapparatuur. Aansluitend bevindt zich de bijkeuken met wasmachine- en drogeraansluiting.

Verdieping:

Overloop met toegang tot drie slaapkamers, allen voorzien van praktische vaste kasten. De badkamer is volledig betegeld en modern uitgevoerd met een wastafelmeubel en douche.

Vliering:

Via een vlizotrap bereikt u de bergzolder met de C.V.-opstelling, ideaal als extra opslagruimte.

Kenmerken
• Bouwjaar 1967
• Perceel 136 m²
• C.V.-ketel (ATAG, 2009)
• Uitgebouwd aan voor- en achterzijde
• Zonnige tuin op het zuiden met achterom
• Vrijstaande stenen berging

Kortom: ben je op zoek naar een instapklare woning op een centrale locatie in ’t Harde? Dan is dit jouw kans. Plan snel een bezichtiging !

Lees de volledige omschrijving

Contact en info

Heb je vragen over deze woning of wil je een bezichtiging inplannen? Neem dan gerust contact met ons op, we helpen je graag verder!

Plan een bezichtiging

Kenmerken

Overdracht
Status
Verkocht
Koopprijs
€ 335.000,-
Aanvaarding
In overleg
Woonoppervlakte
79 m2
Inhoud
308 m3
Bouwvorm
Soort object
Woonhuis
Type woning
Tussenwoning
Soort
Eengezinswoning
Bouwjaar
1967
Bouwvorm
Bestaande bouw
Ligging
Aan rustige weg, In woonwijk
Overdracht
Woonoppervlakte
79 m2
Perceel oppervlakte
136 m2
Inhoud
308 m3
Aantal kamers
4
Aantal slaapkamers
3
Energie
Energieklasse
C
Isolatievormen
Grotendeels dubbelglas
Verwarming
CV ketel
Bouwjaar
2009
Buitenruimte
Tuin
Achtertuin, Voortuin
Hoofdtuin
Achtertuin
Hoofdtuin oppervlakte
60 m2
Positie
Zuid
Achterom
Ja
Kwaliteit
Verzorgd
Bergruimte
Soort
Vrijstaand steen
Voorzieningen
Voorzien van elektra
Parkeergelegenheid
Garage
Geen garage
Voorzieningen
Voorzien van elektra
Parkeer faciliteiten
Openbaar parkeren
Dak
Soort dak
Zadeldak
Kwaliteit dak
Pannen
Voorzieningen
Voorzieningen
Buitenzonwering, Natuurlijke ventilatie
Overig
Permanente bewoning
Ja
Onderhoud binnen
Goed
Onderhoud buiten
Goed
Huidig gebruik
Woonruimte
Huidige bestemming
Woonruimte
Bekijk alle specificaties

Interesse of meer weten?

Leuk dat je geïnteresseerd bent in deze woning! Als erkende makelaar staan wij voor je klaar om al je vragen te beantwoorden en om een bezichtiging in te plannen.

bureauhanze

    Met het versturen van dit formulier ga je akkoord met onze gebruiksvoorwaarden en privacybeleid.