Molendijkjes 44

8082 BA Elburg
€ 525.000,- k.k.
3kamers
97 m2wonen
195 m2perceel

Algemene informatie

Aanvaarding
In overleg
Type woning
Hoekwoning
Energieklasse
A

Omschrijving

Stijlvolle, duurzame hoekwoning in de gewilde woonwijk “De Dijkjes” – Elburg.

Op zoek naar een moderne, instapklare woning op een rustige en kindvriendelijke locatie? Deze jonge duurzame hoekwoning, gelegen aan de rand van de populaire nieuwbouwwijk “De Dijkjes” in Elburg, combineert hoogwaardige afwerking met comfort en duurzaamheid.

De woning is gesitueerd aan een rustige straat en beschikt over een hoge mate van afwerking. Strak gestuukte wanden, moderne vloerafwerking en onderhoudsarme kunststof kozijnen zorgen voor een eigentijdse uitstraling én lage onderhoudskosten.

Achter de woning bevindt zich een prachtige houten serre met extra lichtinval – een sfeervolle verlenging van de leefruimte waar binnen en buiten naadloos in elkaar overlopen.

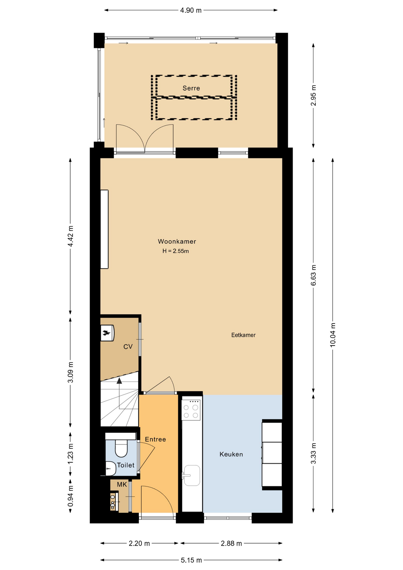
Begane grond:

Entree met meterkast, trapopgang naar de verdieping en toegang tot de toiletruimte. Sfeervolle tuingerichte woonkamer met openslaande deuren naar de volledig afsluitbare serre. De open keuken in moderne stijl is uitgerust met een recht blok aan één zijde voorzien van een natuurstenen aanrechtblad, kookplaat, afzuigkap en vaatwasser, aan de andere zijde bevindt zich een kastenwand met koelkast en combi-oven/magnetron. De wanden en plafonds van de woonkamer en keuken zijn strak gestukt en v.v. inbouwverlichting en de vloer is een mooie pvc-vloer met vloerverwarming.

Verdieping:

Overloop. Drie fijne slaapkamers, waarbij de ouderslaapkamer aan de achterzijde b is voorzien van een vaste kastenwand. Geheel betegelde moderne badkamer met inloopdouche, wastafelmeubel en 2e toilet.

Zolder:

Grote open zolderruimte met dakraam en de aansluiting voor de wasmachine en droger. Deze ruimte biedt de mogelijkheid om 1 of 2 extra slaap-/hobbykamers te realiseren. De technische ruimte zit in een afzonderlijke kast
.

Pluspunten van deze woning:
• Duurzame, jonge hoekwoning in gewilde woonwijk
• Rustige ligging aan de rand van de wijk
• Hoogwaardige afwerking met strakke wanden en moderne materialen
• Onderhoudsvriendelijke kunststof kozijnen
• Woonoppervlak 97 m²
• Perceeloppervlakte 195 m²
• Fraaie houten serre direct aan de achterzijde met extra licht en ruimte
• 15 zonnepanelen aanwezig.
• Energielabel A +++ (hierdoor extra, lage rente en hoger leencapaciteit)

Deze woning biedt alles wat u mag verwachten van comfortabel en energiezuinig wonen in een fijne, jonge buurt.
Een woning waar u zó in kunt! Nieuwsgierig geworden? Neem contact met ons op voor een bezichtiging en laat u verrassen door de ruimte, het comfort en de kwaliteit.

Aanvaarding in overleg

Lees de volledige omschrijving

Contact en info

Heb je vragen over deze woning of wil je een bezichtiging inplannen? Neem dan gerust contact met ons op, we helpen je graag verder!

Plan een bezichtiging

Kenmerken

Overdracht
Status
Verkocht
Koopprijs
€ 525.000,-
Aanvaarding
In overleg
Woonoppervlakte
97 m2
Inhoud
518 m3
Bouwvorm
Soort object
Woonhuis
Type woning
Hoekwoning
Soort
Eengezinswoning
Bouwjaar
2020
Bouwvorm
Bestaande bouw
Ligging
Aan rustige weg, In woonwijk
Overdracht
Woonoppervlakte
97 m2
Perceel oppervlakte
195 m2
Inhoud
518 m3
Aantal kamers
4
Aantal slaapkamers
3
Energie
Energieklasse
A
Isolatievormen
Volledig geïsoleerd
Verwarming
Vloerverwarming gedeeltelijk, Warmtepomp, Warmte terugwininstallatie
Buitenruimte
Tuin
Achtertuin, Voortuin, Zijtuin
Hoofdtuin
Achtertuin
Hoofdtuin oppervlakte
48 m2
Positie
Oost
Achterom
Nee
Kwaliteit
Verzorgd
Bergruimte
Soort
Vrijstaand hout
Voorzieningen
Voorzien van elektra
Parkeergelegenheid
Garage
Geen garage
Voorzieningen
Voorzien van elektra
Parkeer faciliteiten
Openbaar parkeren
Dak
Soort dak
Zadeldak
Kwaliteit dak
Pannen
Voorzieningen
Voorzieningen
Mechanische ventilatie, Rolluiken, Glasvezel kabel, Zonnepanelen
Overig
Permanente bewoning
Ja
Onderhoud binnen
Goed tot uitstekend
Onderhoud buiten
Goed tot uitstekend
Huidig gebruik
Woonruimte
Huidige bestemming
Woonruimte
Bekijk alle specificaties

Interesse of meer weten?

Leuk dat je geïnteresseerd bent in deze woning! Als erkende makelaar staan wij voor je klaar om al je vragen te beantwoorden en om een bezichtiging in te plannen.

bureauhanze

    Met het versturen van dit formulier ga je akkoord met onze gebruiksvoorwaarden en privacybeleid.