Pluutstraat 58

8081 MB Elburg
€ 395.000,- k.k.
3kamers
103 m2wonen
156 m2perceel

Algemene informatie

Aanvaarding
In overleg
Type woning
Tussenwoning
Energieklasse
B

Omschrijving

Heerlijk wonen met uitzicht over groenvoorziening!

Deze goed onderhouden tussenwoning is mooi gelegen aan een brede groenstrook. Het is rustig wonen aan dit woonerf, waar u geen directe auto’s voor de deur heeft staan, wel is in de directe omgeving goede parkeergelegenheid.

Nagenoeg de gehele woning is voorzien van onderhoudsarme kunststof kozijnen.

De ruime achtertuin is op het gunstige zuidwesten gelegen, zodat u de gehele dag van de zon kunt genieten. Achter op het perceel staat de royale berging, deze is over de gehele breedte van het perceel.

Het geheel is ook gunstig gelegen ten opzichte van diverse scholen en winkels, ook de rondweg richting de A-28 is op korte afstand bereikbaar.

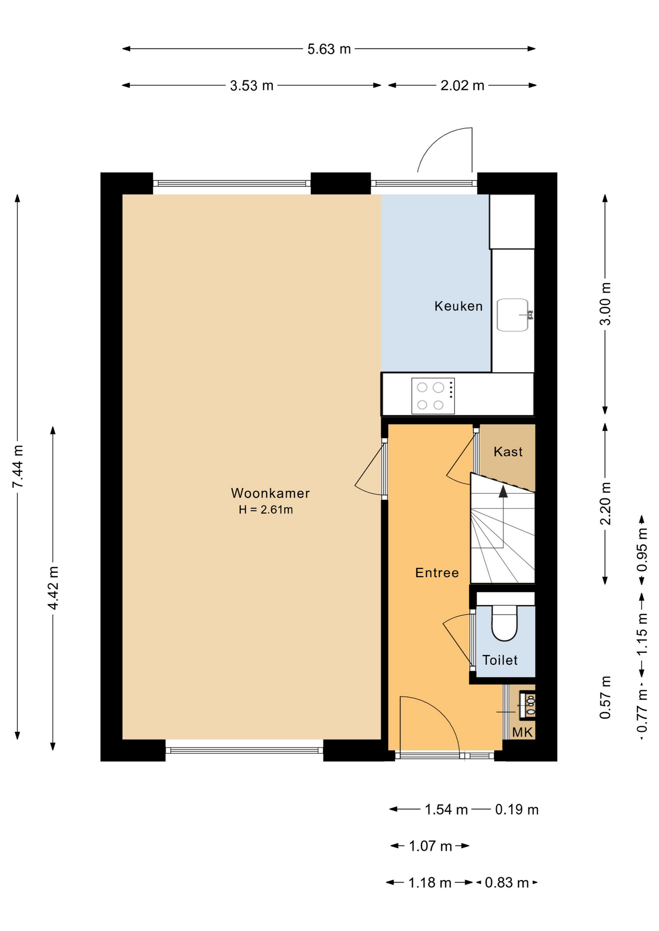
Begane grond:

Entree met meterkast en toegang tot de toiletruimte met vrij hangend toilet.

De mooie doorzonkamer heeft strak afgewerkte wanden en plafond. Vanuit de woonkamer kijkt men vrij naar de groenvoorziening.

Aan de achterzijde van de woning bevindt zich de open keuken met een hoekopstelling, die is voorzien van de benodigde inbouwapparatuur.

Verdieping:

Overloop met toegang tot de drie slaapkamers.

De gemoderniseerde badkamer is voorzien van een inloopdouche, een wastafelmeubel en 2e toilet.

Zolder:

Royale bergzolder beschikt over een Velux dakraam. Er is hier op eenvoudige wijze een 4e slaap-/hobbykamer te creëren.

Opmerking
- Bouwjaar 1981
- Perceeloppervlakte 156 m²
- Woonoppervlak 103 m²
- Energielabel B.

Lees de volledige omschrijving

Contact en info

Heb je vragen over deze woning of wil je een bezichtiging inplannen? Neem dan gerust contact met ons op, we helpen je graag verder!

Plan een bezichtiging

Kenmerken

Overdracht
Status
Verkocht
Koopprijs
€ 395.000,-
Aanvaarding
In overleg
Woonoppervlakte
103 m2
Inhoud
358 m3
Bouwvorm
Soort object
Woonhuis
Type woning
Tussenwoning
Soort
Eengezinswoning
Bouwjaar
1981
Bouwvorm
Bestaande bouw
Ligging
In woonwijk
Overdracht
Woonoppervlakte
103 m2
Perceel oppervlakte
156 m2
Inhoud
358 m3
Aantal kamers
4
Aantal slaapkamers
3
Energie
Energieklasse
B
Isolatievormen
Dakisolatie, Muurisolatie, Vloerisolatie, Grotendeels dubbelglas
Verwarming
CV ketel
Bouwjaar
2009
Buitenruimte
Tuin
Achtertuin, Voortuin
Hoofdtuin
Achtertuin
Hoofdtuin oppervlakte
74 m2
Positie
Zuidwest
Achterom
Ja
Kwaliteit
Verzorgd
Bergruimte
Soort
Aangebouwd steen
Parkeergelegenheid
Garage
Geen garage
Parkeer faciliteiten
Openbaar parkeren
Dak
Soort dak
Zadeldak
Kwaliteit dak
Pannen
Voorzieningen
Voorzieningen
Dakraam, Glasvezel kabel, Zonnepanelen
Overig
Permanente bewoning
Ja
Onderhoud binnen
Goed
Onderhoud buiten
Goed
Huidig gebruik
Woonruimte
Huidige bestemming
Woonruimte
Bekijk alle specificaties

Interesse of meer weten?

Leuk dat je geïnteresseerd bent in deze woning! Als erkende makelaar staan wij voor je klaar om al je vragen te beantwoorden en om een bezichtiging in te plannen.

bureauhanze

    Met het versturen van dit formulier ga je akkoord met onze gebruiksvoorwaarden en privacybeleid.