Nieuw!

Schoenmakersstraat 15A

3841 BB Harderwijk
€ 274.500,- k.k.
41 m2wonen

Algemene informatie

Aanvaarding
In overleg
Energieklasse
B

Omschrijving

Sfeervol wonen in hartje Harderwijk – Schoenmakersstraat

In het gezellige historische stadscentrum van Harderwijk wordt u een charmante studio/appartement aangeboden, gelegen op de eerste verdieping van een statig woon-/winkelpand.

Alle voorzieningen zoals winkels, restaurants en terrassen bevinden zich letterlijk om de hoek. Hier ervaart u dagelijks de levendigheid en sfeer van de binnenstad.

Het appartement is bereikbaar via een achter opgang en biedt daarnaast het medegebruik van een dakterras, een heerlijke plek om even tot rust te komen. Ook is er ruimte voor het stallen van een fiets.

Indeling
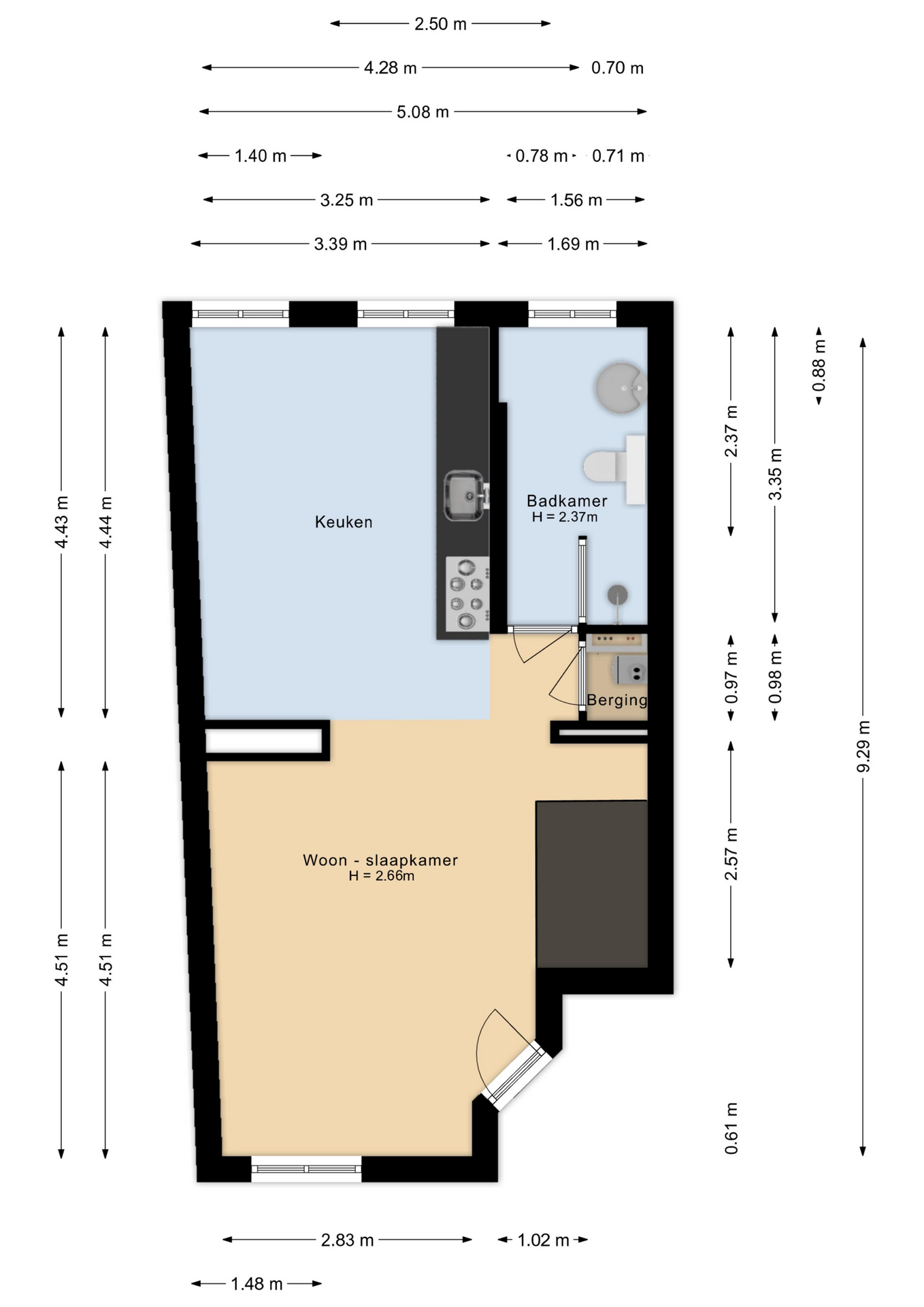
Via de achteringang bereikt u de woning op de eerste verdieping. De studio beschikt over een lichte woonkamer met slaapgelegenheid. Aan de voorzijde bevindt zich een royale woonkeuken met een recht keukenblok, voorzien van diverse inbouwapparatuur. De ruime badkamer is uitgerust met een wastafel, douche en toilet.

Bijzonderheden

Woonoppervlakte: 41 m²
Servicekosten: Voorlopig € 175,- (excl. voorschot G/W/E)
Meerjarenonderhoudsplan aanwezig
Energielabel: B
Verwarming middels eigen C.V.-installatie

Kortom
Ben je toe aan een eigen plek midden in de stad? Dan is deze studio/appartement absoluut een bezichtiging waard! Neem gerust contact op voor een vrijblijvende bezichtiging.

Aanvaarding: in overleg

Lees de volledige omschrijving

Contact en info

Heb je vragen over deze woning of wil je een bezichtiging inplannen? Neem dan gerust contact met ons op, we helpen je graag verder!

Plan een bezichtiging

Kenmerken

Overdracht
Koopprijs
€ 274.500,-
Aanvaarding
In overleg
Woonoppervlakte
41 m2
Inhoud
138 m3
Bouwvorm
Soort object
Appartement
Bouwjaar
1870
Bouwvorm
Bestaande bouw
Ligging
In centrum
Overdracht
Woonoppervlakte
41 m2
Inhoud
138 m3
Aantal kamers
1
Energie
Energieklasse
B
Isolatievormen
Vloerisolatie, Dubbelglas
Verwarming
CV ketel
Bouwjaar
2012
Buitenruimte
Tuin
Zonneterras
Achterom
Nee
Kwaliteit
Normaal
Parkeergelegenheid
Garage
Geen garage
Parkeer faciliteiten
Betaald parkeren, Parkeervergunningen
Overig
Permanente bewoning
Ja
Onderhoud binnen
Goed
Onderhoud buiten
Goed
Huidig gebruik
Woonruimte
Huidige bestemming
Woonruimte
Bekijk alle specificaties

Interesse of meer weten?

Leuk dat je geïnteresseerd bent in deze woning! Als erkende makelaar staan wij voor je klaar om al je vragen te beantwoorden en om een bezichtiging in te plannen.

bureauhanze

    Met het versturen van dit formulier ga je akkoord met onze gebruiksvoorwaarden en privacybeleid.