Vackenordestraat 2B
Algemene informatie
Omschrijving
Net buiten het “historisch stadscentrum van Elburg” wordt u aangeboden deze onderhoudsarme eengezinswoning, type tussenwoning. Deze woning is in 2010 met duurzame materialen gebouwd, o.a. voorzien van kunststof kozijnen met HR++ glas, instap klaar en strak afgewerkt. Mede door de royale dakkapel aan de achterzijde van de woning, heeft de woning maar liefst 5 slaapkamers.
De achtertuin is lekker groen en op het zonnige zuiden gesitueerd en voorzien van een terras. Wat boompjes zorgen voor privacy en schaduw en koelte op warme dagen. Achter in de tuin is de berging gelegen, deze is ook via een achterom bereikbaar.
Het geheel is op loopafstand gelegen van 'de vesting', dichtbij een gezondheidscentrum, scholen, sportfaciliteiten en andere (winkel)voorzieningen.
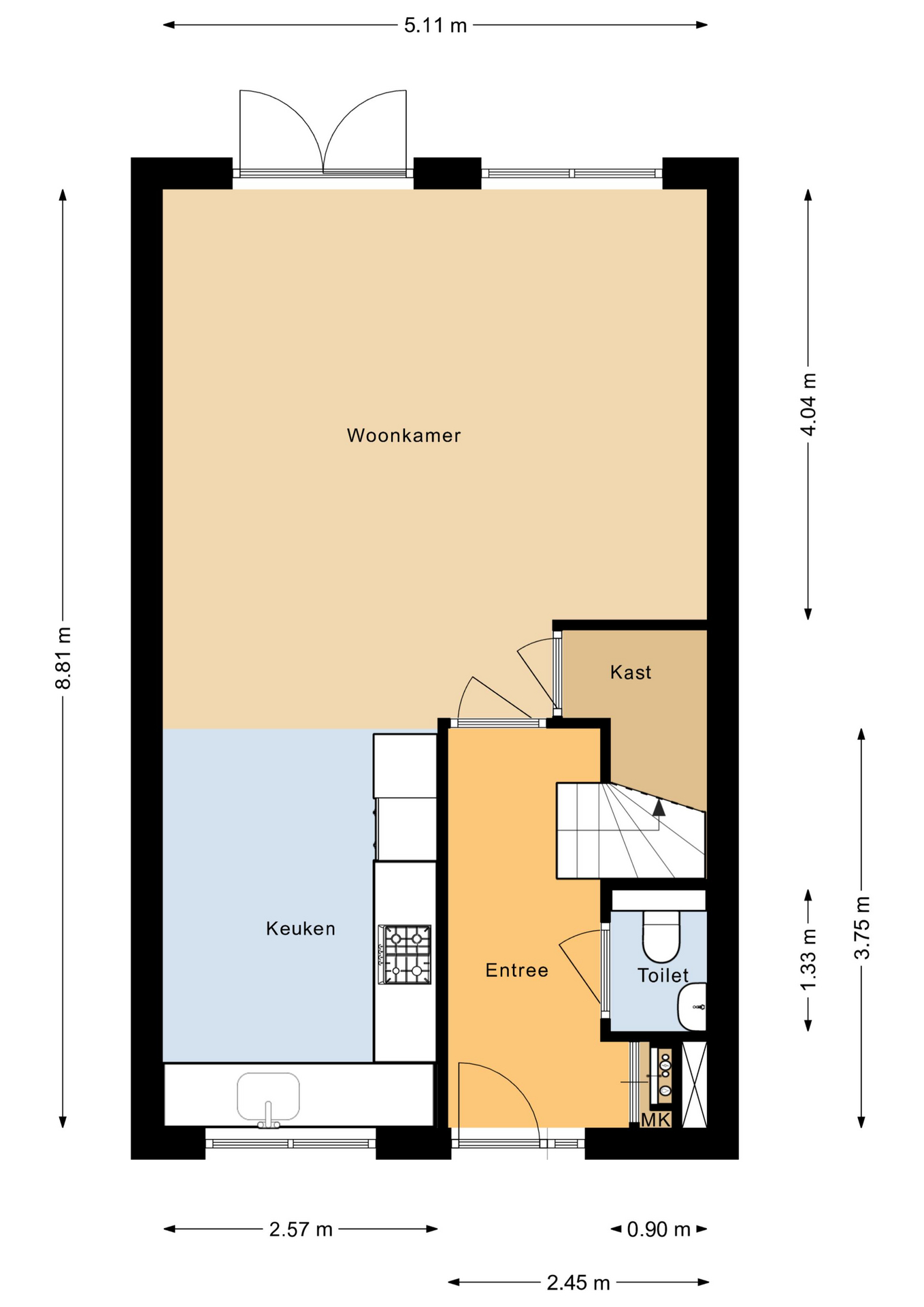
Begane grond:
Entree, meterkast, trapopgang en toegang tot de toiletruimte. De open keuken met hoekkeukenopstelling v.v. diverse inbouwapparatuur bevindt zich aan de voorzijde van de woning. Aan de achterzijde treft u de woonkamer met strakke wandafwerking en een laminaatvloer. In deze kamer kunt u volledig genieten van uw rust en privacy.
Eerste verdieping:
Overloop met toegang naar drie slaapkamers. Volledig betegelde badkamer voorzien van douchegelegenheid, dubbele wastafel met wandmeubel en 2e toilet.
Tweede verdieping:
Voorzolder met dakraam, de aansluiting voor de wasmachine en droger en de opstelling van de pas vernieuwde Cv-ketel. Twee slaapkamers, waarvan de slaapkamer aan de achterzijde over de gehele breedte van de woning is gelegen en voorzien is van een dakkapel wat extra ruimte genereert. De slaapkamer aan de voorzijde biedt middels een losse trap toegang tot de bergvliering, ideaal voor wat extra opslag.
Opmerking:
- Bouwjaar 2010
- Perceeloppervlakte 147 m²
- Woonoppervlakte 121 m²
- Energielabel A
Kortom:
Bent u op zoek naar onderhoudsarme en duurzame woning op goede locatie van Elburg, bel dan voor een vrijblijvende bezichtiging.
Aanvaarding in overleg
Contact en info
Heb je vragen over deze woning of wil je een bezichtiging inplannen? Neem dan gerust contact met ons op, we helpen je graag verder!
Plan een bezichtigingKenmerken
Interesse of meer weten?
Leuk dat je geïnteresseerd bent in deze woning! Als erkende makelaar staan wij voor je klaar om al je vragen te beantwoorden en om een bezichtiging in te plannen.