van Gulickstraat 8

8081 AR Elburg
€ 348.500,- k.k.
3kamers
85 m2wonen
136 m2perceel

Algemene informatie

Aanvaarding
In overleg
Type woning
Tussenwoning
Energieklasse
D

Omschrijving

Welkom in deze gezellige uitgebouwde tussenwoning, gelegen in de rustige en kindvriendelijke woonwijk Molendorp, nabij het historisch stadscentrum van Elburg. Ook een basisschool, sportvoorzieningen en een speeltuin zijn op loopafstand te bereiken.

Deze woning is perfect voor starters die hun eerste stap op de woningmarkt willen zetten. De woning verkeert in uitstekende staat van onderhoud, is gebouwd in 1961 en staat op een perceel van 136 m².

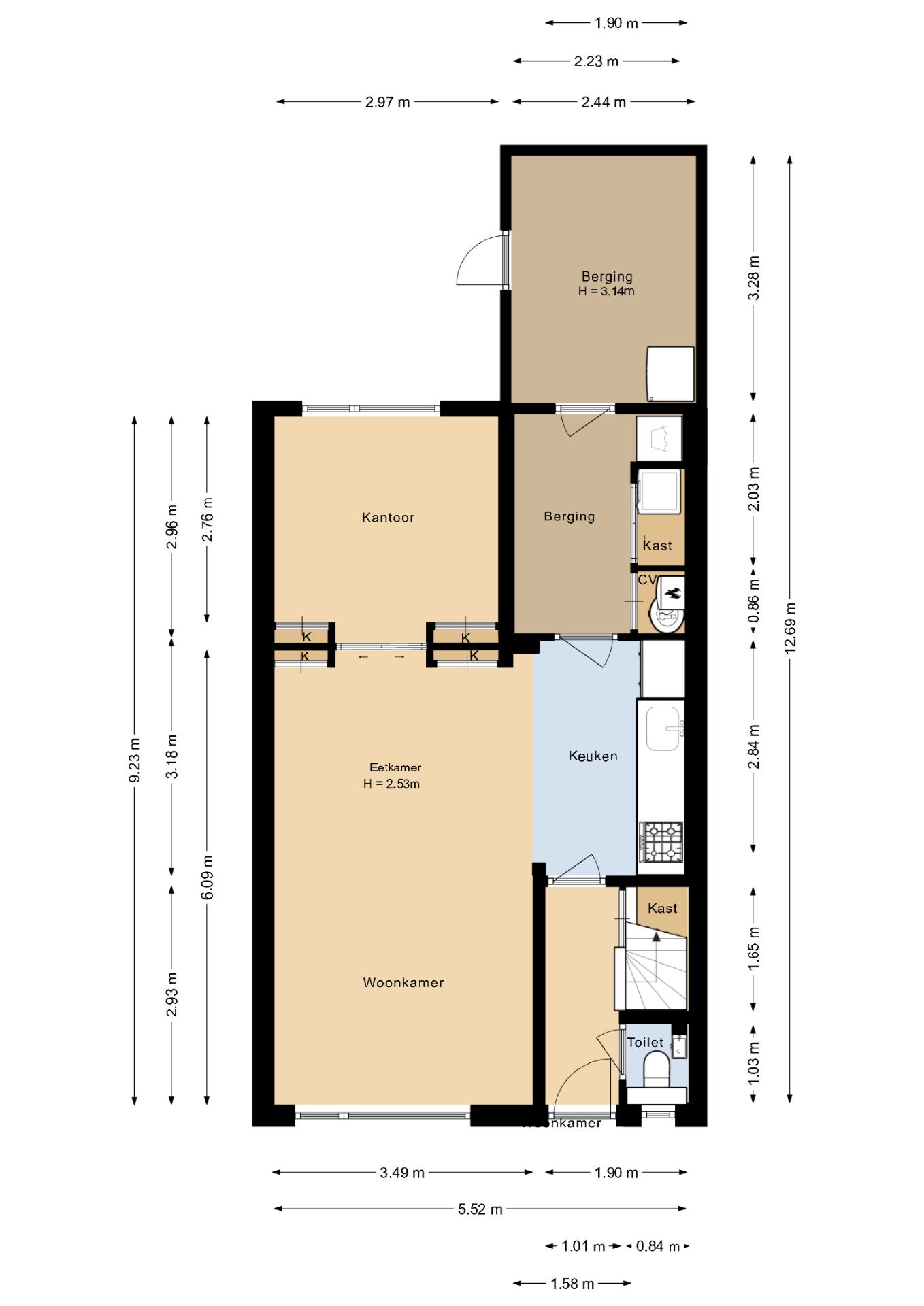
Begane grond :

Entree, met de trapopgang, de provisieruimte en de vernieuwde toiletruimte. Woonkamer met zitgedeelte aan de voorzijde. Vanuit de woonkamer geven schuifdeuren toegang tot een gezellige extra kamer, perfect als speel- of werkkamer. In de open keuken treft u een recht keukenblok aan met diverse inbouwapparatuur. Achter de keuken is er nog een bijkeuken met een handige schuifkast voor extra bergruimte.

Verdieping:

Overloop en toegang naar drie slaapkamer. De grote slaapkamer aan de achterzijde beschikt over een grote schuifkastenwand. Nieuwe volledig betegelde badkamer met douchegelegenheid en wastafel. Middels vlizotrap te bereiken …

Vliering:

Bergzolder.

Wacht niet te lang. Maak snel een afspraak voor een bezichtiging en laat je verrassen door deze fijne en goed onderhouden starterswoning!

Aanvaarding in overleg

Lees de volledige omschrijving

Contact en info

Heb je vragen over deze woning of wil je een bezichtiging inplannen? Neem dan gerust contact met ons op, we helpen je graag verder!

Plan een bezichtiging

Kenmerken

Overdracht
Status
Verkocht
Koopprijs
€ 348.500,-
Aanvaarding
In overleg
Woonoppervlakte
85 m2
Inhoud
353 m3
Bouwvorm
Soort object
Woonhuis
Type woning
Tussenwoning
Soort
Eengezinswoning
Bouwjaar
1961
Bouwvorm
Bestaande bouw
Ligging
Aan rustige weg, In woonwijk
Overdracht
Woonoppervlakte
85 m2
Perceel oppervlakte
136 m2
Inhoud
353 m3
Aantal kamers
5
Aantal slaapkamers
3
Energie
Energieklasse
D
Isolatievormen
Dakisolatie, Muurisolatie, Grotendeels dubbelglas
Verwarming
CV ketel
Bouwjaar
2005
Buitenruimte
Tuin
Achtertuin, Voortuin
Hoofdtuin
Achtertuin
Hoofdtuin oppervlakte
45 m2
Positie
Oost
Achterom
Ja
Kwaliteit
Normaal
Bergruimte
Soort
Aangebouwd steen
Voorzieningen
Voorzien van elektra
Parkeergelegenheid
Garage
Geen garage
Voorzieningen
Voorzien van elektra
Parkeer faciliteiten
Openbaar parkeren
Dak
Soort dak
Zadeldak
Kwaliteit dak
Pannen
Voorzieningen
Voorzieningen
Buitenzonwering
Overig
Permanente bewoning
Ja
Onderhoud binnen
Goed
Onderhoud buiten
Goed
Huidig gebruik
Woonruimte
Huidige bestemming
Woonruimte
Bekijk alle specificaties

Interesse of meer weten?

Leuk dat je geïnteresseerd bent in deze woning! Als erkende makelaar staan wij voor je klaar om al je vragen te beantwoorden en om een bezichtiging in te plannen.

bureauhanze

    Met het versturen van dit formulier ga je akkoord met onze gebruiksvoorwaarden en privacybeleid.