Verlengde Haerderweg 5R C2

8085 RJ Doornspijk
€ 99.000,- k.k.
2kamers
41 m2wonen
336 m2perceel

Algemene informatie

Aanvaarding
In overleg
Type woning
Vrijstaande woning

Omschrijving

Het vakantiegevoel midden in de bossen !
Wie wil dat nou niet ....

Dit heerlijk gelegen en onderhoudsarme chalet wordt geheel gemeubileerd en gestoffeerd opgeleverd.
Uw vakantie kan dus direct beginnen!

Buiten op de royale veranda van ca. 17 m² kunt u heerlijk wakker worden met een kopje koffie of thee en genieten van de eekhoorntjes en het gezang van de vogels. Door de openslaande deuren vanuit de woonkamer is dit echt een verlengstuk van het chalet geworden.

Het perceel is geheel omheind middens een stevig hekwerk zodat eventuele huisdieren zonder al te veel omkijken, ook van het vrije leven kunnen genieten. Aan de voorzijde is parkeergelegenheid voor de auto met aansluitend een houten blokhut voor bijv. fietsen ed.

Het chalet van ca. 41 m² staat midden in de natuur, in een bosrijke omgeving, op een perceel van 336 m² eigen grond! Het is omgeven door prachtige dennenbomen, gelegen aan een vijver en op het terras of onder de overkapping kunt u op elk moment van de dag heerlijk van de zon te genieten.

Bospark "Dennenrhode" ligt aan de rand van de Noord-Veluwe, begrensd door 500 hectare natuurgebied van het Geldersch Landschap. Midden in dit natuurschoon vind je een oase van rust en een zee van ruimte. Evengoed heeft het een centrale ligging met het oogpunt op cultuur, sport en attracties.

In de buurt vindt u het Veluwemeer en de prachtige oude Hanzesteden zoals; Elburg, Kampen, Hattem en Harderwijk.

Het park kenmerkt zich door haar natuurlijke uiterlijk. Groot opgezet met fraaie vijverpartijen en in wildverband geplaatste chalets en bungalows.

Voorbij de sfeervolle entree bevinden zich een verwarmd buitenbad en een speeltuin voor de kleintjes. Ook is er een wasserette op het park aanwezig.

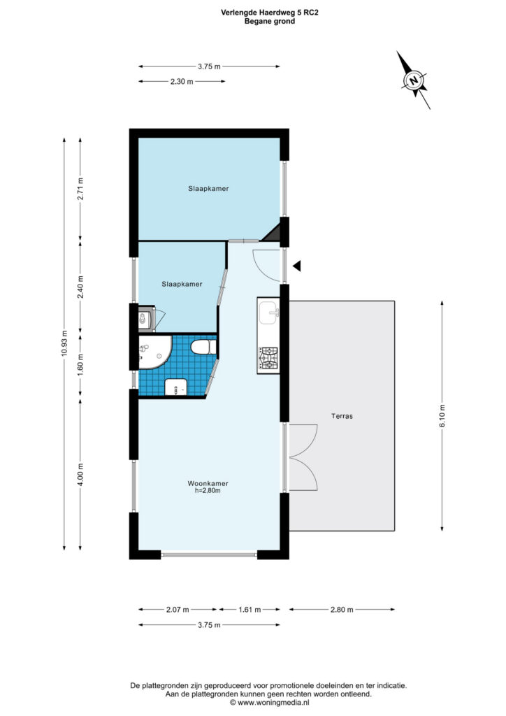
Indeling:

Bij binnenkomst staat u in de hal met het rechte keukenblok. De keuken is voorzien van een gaskookplaat, een oven en een losse koelkast.

In de gezellige woonkamer zitten openslaande deuren naar de veranda. Hier is aan de zijgevel het gehele kozijn vervangen door kunststof ramen en kozijnen met HR ++ glas.

Er zijn twee slaapkamers aanwezig. In de grote slaapkamer vindt u een twee-persoons bed. In de kleinere slaapkamer staat een eenpersoonsbed en zit een vaste kast met daarin de CV combiketel ui 2018.

De geheel betegelde badkamer beschikt over een douchecabine, een wastafel en een toilet

- Dubbel glas, muur- en dakisolatie
- Permanente bewoning bestemming technisch niet toegestaan!
- Parkkosten bedragen in 2025 ca. € 1.180,-
- Twee huisdieren per chalet toegestaan

Lees de volledige omschrijving

Contact en info

Heb je vragen over deze woning of wil je een bezichtiging inplannen? Neem dan gerust contact met ons op, we helpen je graag verder!

Plan een bezichtiging

Kenmerken

Overdracht
Status
Verkocht
Koopprijs
€ 99.000,-
Aanvaarding
In overleg
Woonoppervlakte
41 m2
Inhoud
123 m3
Bouwvorm
Soort object
Woonhuis
Type woning
Vrijstaande woning
Soort
Eengezinswoning
Bouwjaar
1999
Bouwvorm
Bestaande bouw
Ligging
Aan bosrand, Aan park, Buiten bebouwde kom, In bosrijke omgeving
Overdracht
Woonoppervlakte
41 m2
Perceel oppervlakte
336 m2
Inhoud
123 m3
Aantal kamers
3
Aantal slaapkamers
2
Energie
Isolatievormen
Dakisolatie, Muurisolatie, Dubbelglas
Verwarming
CV ketel
Bouwjaar
2018
Buitenruimte
Tuin
Tuin rondom
Hoofdtuin
Tuin rondom
Achterom
Ja
Kwaliteit
Normaal
Bergruimte
Soort
Vrijstaand hout
Parkeergelegenheid
Garage
Geen garage
Parkeer faciliteiten
Op eigen terrein
Parkeren capaciteit
1
Dak
Soort dak
Schilddak
Kwaliteit dak
Metaal
Overig
Permanente bewoning
Nee
Onderhoud binnen
Goed
Onderhoud buiten
Goed
Huidig gebruik
Woonruimte
Huidige bestemming
Woonruimte
Bekijk alle specificaties

Interesse of meer weten?

Leuk dat je geïnteresseerd bent in deze woning! Als erkende makelaar staan wij voor je klaar om al je vragen te beantwoorden en om een bezichtiging in te plannen.

bureauhanze

    Met het versturen van dit formulier ga je akkoord met onze gebruiksvoorwaarden en privacybeleid.