Vicariestraat 8

8081 XK Elburg
€ 350.000,- k.k.
4kamers
100 m2wonen
129 m2perceel

Algemene informatie

Aanvaarding
In overleg
Type woning
Tussenwoning
Energieklasse
B

Omschrijving

Gezellige onderhoudsarme middenwoning met nok verhogende dakkapel.

In woonwijk "De Oosthoek" staat deze leuke onderhoudsarme MIDDENWONING met vrijstaande stenen berging en nok verhogende dakkapel. De dakopbouw is in 2005 gerealiseerd, hierdoor is er een extra (slaap)-kamer op de 2e verdieping gecreëerd.

Aan de achterzijde van het perceel staat de berging, deze is over de volle breedte van het perceel. Ook zit hier de deur naar het achterpad. Aan de voorzijde is voldoende parkeergelegenheid aanwezig.

De zonnige achtertuin is gunstig gelegen op het zuidwesten en is geheel bestraat. Een heerlijke plek om lekker te BBQ-en of van een kopje koffie te genieten.

De woning heeft een B-Label en beschikt over kunststof ramen en kozijnen met dubbel glas, dakisolatie en muurisolatie. Tevens zijn er op de begane grond en op de 1ste verdieping rolluiken aanwezig.
Het perceel is groot 129 m². Woonoppervlak betreft ca. 100 m².

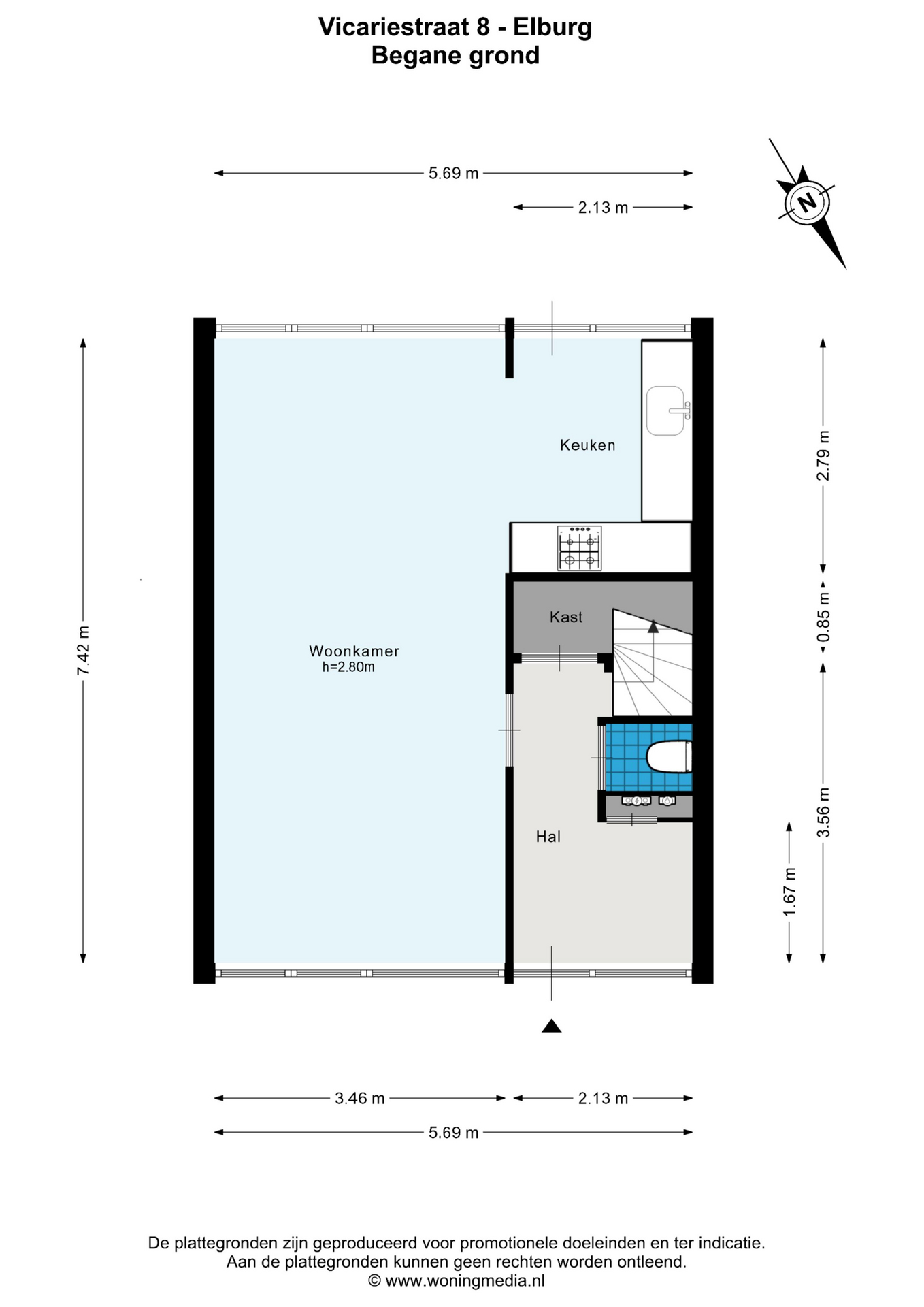
Begane grond:

Via het entree zijn het vrij hangend toilet en de ruime provisie trapkast te bereiken.
De sfeervolle woonkamer kijk aan de voorzijde vrij uit over gemeentelijk groen en is voorzien van een PVC tegel vloer.

In de halfopen keuken staat een hoekopstelling uitgerust met een inductie kookplaat, vaatwasmachine, koelkast en een hete lucht oven.

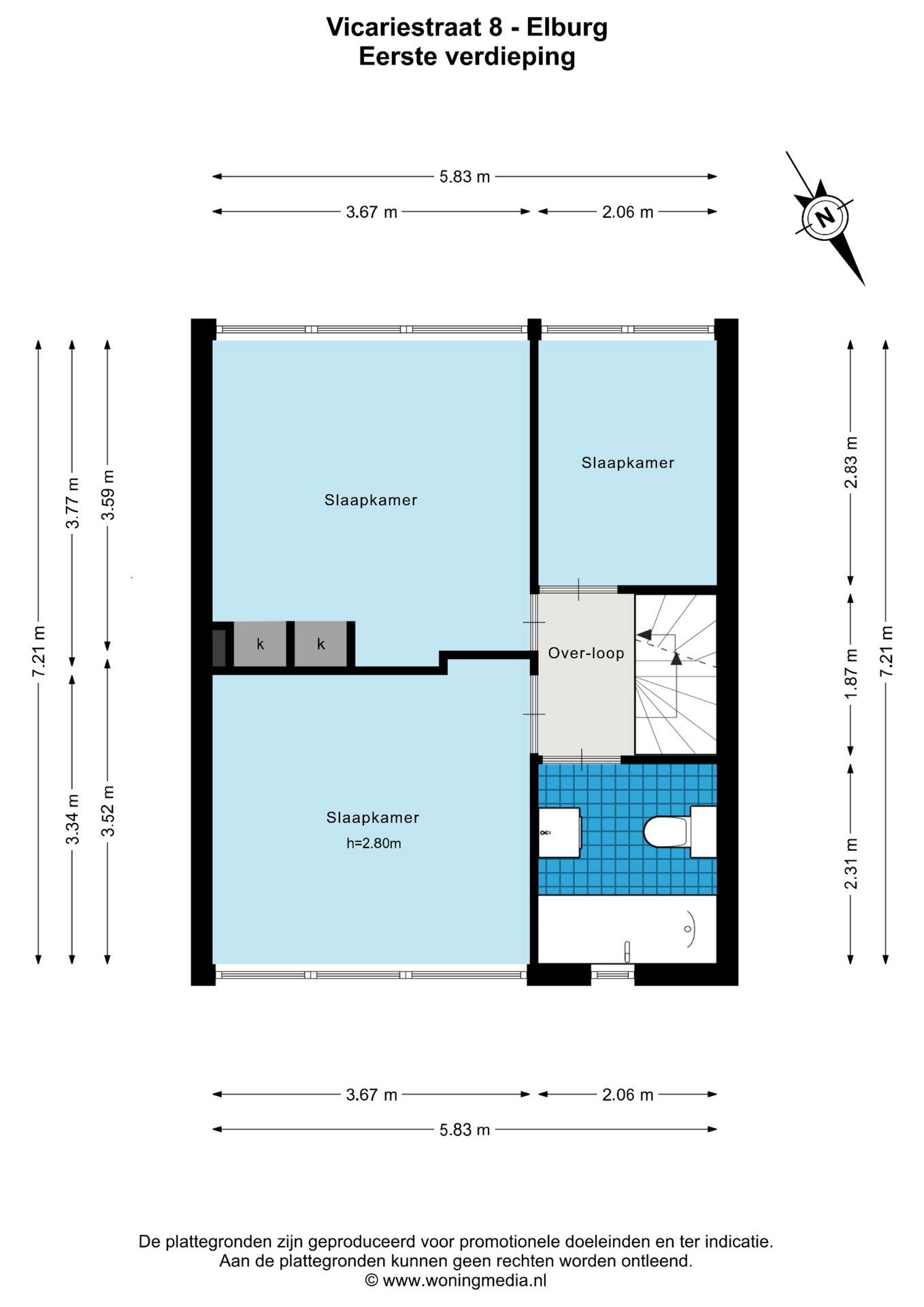
1ste Verdieping:

Middels de overloop zijn de drie slaapkamers te bereiken. De grote slaapkamer aan de achterzijde beschikt over vaste kastruimte.

De geheel betegelde badkamer is voorzien van een ligbad met douchescherm, een wastafelmeubel en een vrij hangend toilet.

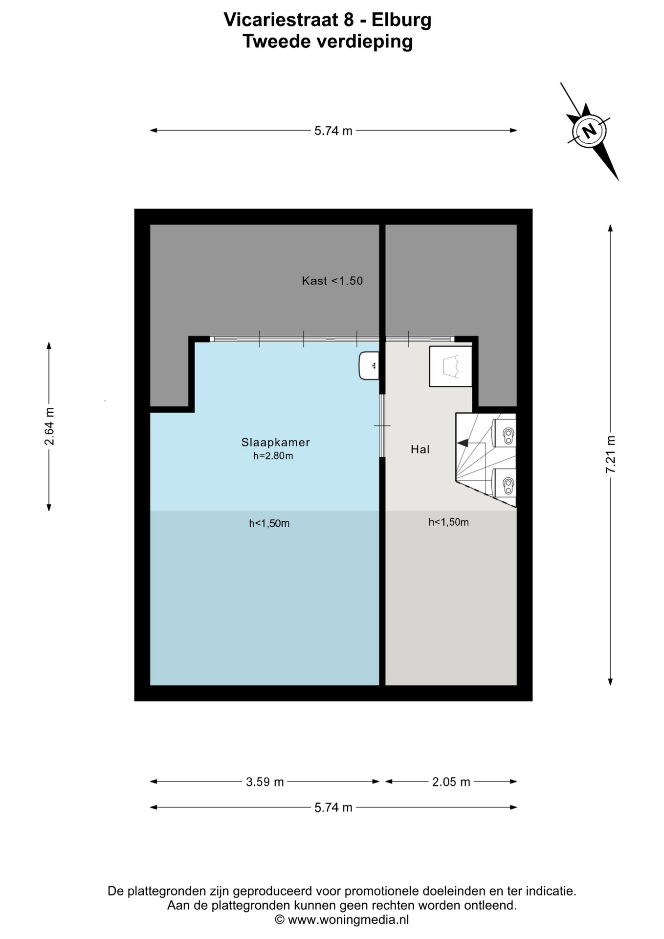
2de Verdieping:

Voorzolder met HR combiketel, omvormer en aansluiting wasmachine. Vierde slaapkamer met bergruimte in het knieschot.

Lees de volledige omschrijving

Contact en info

Heb je vragen over deze woning of wil je een bezichtiging inplannen? Neem dan gerust contact met ons op, we helpen je graag verder!

Plan een bezichtiging

Kenmerken

Overdracht
Status
Verkocht
Koopprijs
€ 350.000,-
Aanvaarding
In overleg
Woonoppervlakte
100 m2
Inhoud
300 m3
Bouwvorm
Soort object
Woonhuis
Type woning
Tussenwoning
Soort
Eengezinswoning
Bouwjaar
1966
Bouwvorm
Bestaande bouw
Ligging
Aan rustige weg, In woonwijk
Overdracht
Woonoppervlakte
100 m2
Perceel oppervlakte
129 m2
Inhoud
300 m3
Aantal kamers
5
Aantal slaapkamers
4
Energie
Energieklasse
B
Isolatievormen
Dakisolatie, Muurisolatie, Dubbelglas
Verwarming
CV ketel
Bouwjaar
2009
Buitenruimte
Tuin
Achtertuin, Voortuin
Hoofdtuin
Achtertuin
Hoofdtuin oppervlakte
48 m2
Positie
Zuidwest
Achterom
Ja
Kwaliteit
Normaal
Bergruimte
Soort
Vrijstaand steen
Parkeergelegenheid
Garage
Geen garage
Parkeer faciliteiten
Openbaar parkeren
Dak
Soort dak
Zadeldak
Kwaliteit dak
Pannen
Voorzieningen
Voorzieningen
Rolluiken
Overig
Permanente bewoning
Ja
Onderhoud binnen
Goed
Onderhoud buiten
Goed
Huidig gebruik
Woonruimte
Huidige bestemming
Woonruimte
Bekijk alle specificaties

Interesse of meer weten?

Leuk dat je geïnteresseerd bent in deze woning! Als erkende makelaar staan wij voor je klaar om al je vragen te beantwoorden en om een bezichtiging in te plannen.

bureauhanze

    Met het versturen van dit formulier ga je akkoord met onze gebruiksvoorwaarden en privacybeleid.