Vreeweg 51
Algemene informatie
Omschrijving
Tussen de gezellige dorpskern van Nunspeet en het schitterende Veluwemeer, ligt dit bijzondere object op een royale kavel van maar liefst 10.138 m². Hier treft u een charmante semibungalow uit 1955, omringd door een oase van groen en rust
Hoewel de woning toe is aan een grondige renovatie, modernisering of verduurzaming, biedt dit juist unieke kansen voor de creatieve koper. U kunt het bestaande karakter in ere herstellen of kiezen voor volledige nieuwbouw – de mogelijkheden zijn eindeloos.
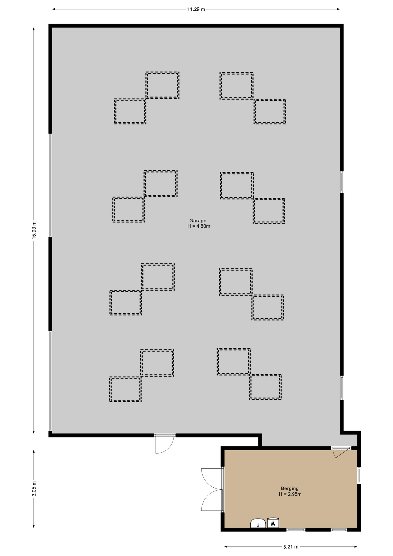
Dankzij de zeer ruime kavel is dit object uitermate geschikt voor paardenliefhebbers, het houden van kleinvee of simpelweg het realiseren van uw droomtuin. Op het perceel bevindt zich bovendien een royale schuur van ca. 198 m², die zich perfect leent voor diverse doeleinden zoals opslag, hobbyruimte of paardenstalling.
Naast de woning vindt u een sfeervolle oude boomgaard met diverse appel-, peren-, pruimen- en walnotenbomen. Een idyllisch plekje met potentie voor een heerlijke moestuin, gezellige zitplek of speelruimte voor kinderen.
Begane grond:
Entree met toegang naar de toiletruimte. De woonkamer is in het midden van de woning gesitueerd en heeft prachtig uitzicht op de eigen boomgaard en landerijen en is voorzien van een sfeervolle houtkachel. De open keuken met eenvoudig keukenblok treft u aan de andere zijde.
Aan de voorzijde van de woning bevinden zich drie slaapkamers, allen voorzien van een wastafel. De vierde en vijfde zijn aan de achterzijde gelegen. Ook is hier nog een eenvoudige douchegelegenheid aanwezig.
Kortom het gehele woonprogramma bevindt zich op de begane grond. Verder is er nog een bijkeuken en een achter portaal aanwezig.
Vliering:
De bergzolder is te bereiken via een schuiftrap, hier is de Cv- ketelopstelling te vinden.
Opmerkingen:
- Het gehele perceel is 10.138 m² groot
- Bouwjaar 1955
- Woonoppervlakte 120 m²
Bent u op zoek naar een mooie locatie in het buitengebied van Nunspeet met veel mogelijkheden en durft u de uitdaging aan om hier uw eigen thuis van te maken, bel dan voor een vrijblijvende bezichtiging.
Aanvaarding in overleg
Contact en info
Heb je vragen over deze woning of wil je een bezichtiging inplannen? Neem dan gerust contact met ons op, we helpen je graag verder!
Plan een bezichtigingKenmerken
Interesse of meer weten?
Leuk dat je geïnteresseerd bent in deze woning! Als erkende makelaar staan wij voor je klaar om al je vragen te beantwoorden en om een bezichtiging in te plannen.