Zwarteweg 6

8097 PV Oosterwolde Gld
€ 387.500,- k.k.
4kamers
107 m2wonen
430 m2perceel

Algemene informatie

Aanvaarding
In overleg
Type woning
Twee onder één kapwoning
Energieklasse
C

Omschrijving

In de kern van Oosterwolde (Gld) wordt u aangeboden een leuke twee-onder-een-kapwoning. Wat dit geheel zo speciaal maakt is het feit dat achter op het erf een zeer royale geïsoleerde garage/berging met vliering aanwezig is, welke voor veler doeleinden geschikt te maken is. Deze ruimte was voorheen magazijn voor een installatiebedrijf, maar zou ook ideaal zijn voor bijv. een mantelzorgwoning.

De besloten achtertuin is heerlijk op het zuiden gesitueerd en biedt veel vrijheid en privacy.

Oosterwolde is leuke gezellige woonplaats met de slager/bakker om de hoek, tevens zijn diverse sportverenigingen op korte afstand bereikbaar.

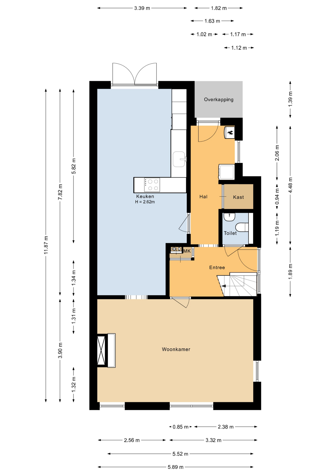
Indeling:
Begane grond:

Entree, trapopgang. De woonkamer bevindt zich aan de voorzijde van de woning, De woning is aan de achterzijde uitgebouw waardoor er een riante woonkeuken is ontstaan met inbouwkeuken v.v. de benodigde inbouwapparatuur. Een lichtkoepel in het platte dak zorgt voor extra daglicht in de keuken. Achteringang met vast kast, de opstelling voor de Cv-ketel en een aansluiting voor de wasmachine en droger. Tevens is hier de toiletruimte aanwezig.

Eerste verdieping;

Overloop met toegang naar een ruime ouderslaapkamer aan de voorzijde en twee kleinere slaapkamers aan de achterzijde van de woning, deze twee slaapkamers zijn voorzien van een dakkapel. Ruime badkamer met inloopdouche, wasmeubel, hoekligbad en 2e toilet. Via vaste trap te bereiken..

Tweede verdieping:

Voorzolder met bergruimte en 4e slaap-/hobbykamer.

Indeling Garage/berging:

Begane grond: garage en afzonderlijke berging, ca. 49 m²
Verdieping: opslag-/kantoorruimte, ca 34 m²

Bijzonderheden
- Perceeloppervlakte 430 m²
- Woonoppervlakte woning 107 m²
- Overige inpandige ruimte 17 m²
- Energielabel C

Kortom:
Bent u op zoek naar leuke twee-onder-kapwoning in de kern van Oosterwolde met een ruime garage/berging welke voor vele doeleinden geschikt is, bel dan voor een vrijblijvende bezichtiging
Aanvaarding in overleg

Lees de volledige omschrijving

Contact en info

Heb je vragen over deze woning of wil je een bezichtiging inplannen? Neem dan gerust contact met ons op, we helpen je graag verder!

Plan een bezichtiging

Kenmerken

Overdracht
Status
Verkocht
Koopprijs
€ 387.500,-
Aanvaarding
In overleg
Woonoppervlakte
107 m2
Inhoud
441 m3
Bouwvorm
Soort object
Woonhuis
Type woning
Twee onder één kapwoning
Soort
Eengezinswoning
Bouwjaar
1922
Bouwvorm
Bestaande bouw
Ligging
In centrum, Landelijk gelegen
Overdracht
Woonoppervlakte
107 m2
Perceel oppervlakte
430 m2
Inhoud
441 m3
Aantal kamers
5
Aantal slaapkamers
4
Energie
Energieklasse
C
Isolatievormen
Dakisolatie, Muurisolatie, Vloerisolatie, Gedeeltelijk dubbelglas
Verwarming
CV ketel
Bouwjaar
2014
Buitenruimte
Tuin
Achtertuin, Voortuin, Zijtuin
Hoofdtuin
Achtertuin
Hoofdtuin oppervlakte
126 m2
Positie
Zuidoost
Achterom
Nee
Kwaliteit
Normaal
Bergruimte
Soort
Vrijstaand steen
Voorzieningen
Voorzien van elektra, Met vliering
Parkeergelegenheid
Garage
Geen garage
Voorzieningen
Voorzien van elektra, Met vliering
Parkeer faciliteiten
Openbaar parkeren, Op eigen terrein
Parkeren capaciteit
1
Dak
Soort dak
Zadeldak
Kwaliteit dak
Pannen
Voorzieningen
Voorzieningen
TV kabel, Natuurlijke ventilatie
Overig
Permanente bewoning
Ja
Onderhoud binnen
Redelijk
Onderhoud buiten
Redelijk
Huidig gebruik
Woonruimte
Huidige bestemming
Woonruimte
Bekijk alle specificaties

Interesse of meer weten?

Leuk dat je geïnteresseerd bent in deze woning! Als erkende makelaar staan wij voor je klaar om al je vragen te beantwoorden en om een bezichtiging in te plannen.

bureauhanze

    Met het versturen van dit formulier ga je akkoord met onze gebruiksvoorwaarden en privacybeleid.